Properties 3 of 44 results« Previous property   Next property »

33 Sterling Place, Amityville, NY, 11701 $1,499,000

Single Family For Sale 12 Beds , 6 Full Bath , 5380 SqFt 

Property Picture
1 of 9
 
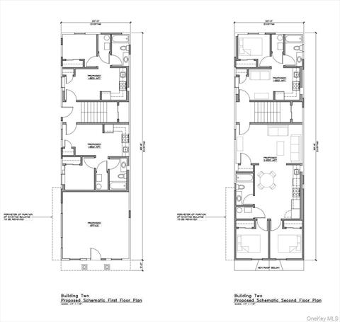
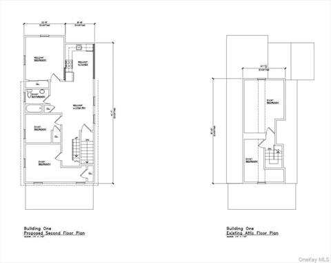
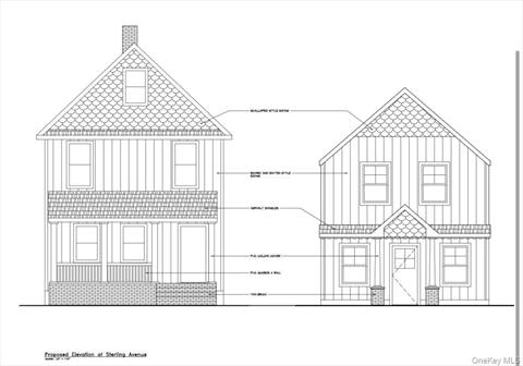
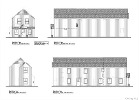
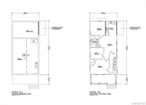
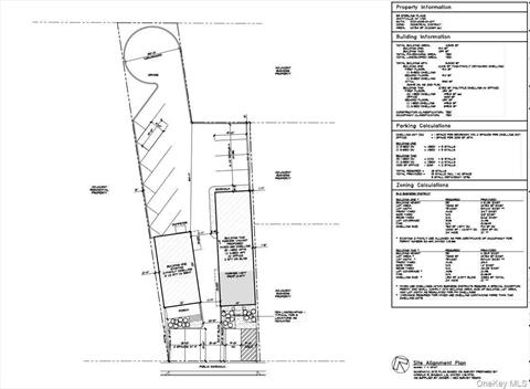
Front of Structure Front of Structure Other Other Other Floor Plan Floor Plan Floor Plan Floor Plan
 

Details ML#: 913853  

  • Style: Colonial
  • Year Built: 1920
  • Taxes: $13,586
  • Status:Active

Description

An exceptional investment opportunity awaits in the Village of Amityville. Offered as a contract vendee, this property features two existing dwellings: a legal two-family residence and a separate commercial structure, both of which are already in place and simply require renovation and an addition to achieve their full potential. The two-family residence consists of a spacious first-floor four-bedroom, one-bath apartment and a second-floor three-bedroom, one-bath apartment. The commercial structure is accompanied by full village approvals and architectural plans for conversion into four additional apartments plus a ground-level retail or office space, supported by ten private parking spaces at the rear. Upon completion, the property will operate as a true six-family rental asset with a bonus commercial unit, generating a projected rent roll of $23, 000 per month, or $276, 000 annually. This translates into an attractive cap rate and the potential for substantial long-term cash flow. Ideally located near the Long Island Rail Road and all major conveniences, the property blends existing infrastructure with approvals in hand, ensuring a streamlined path to redevelopment. Partial seller financing is available, making this a rare chance to acquire a fully approved, high-yield mixed-use property that will stand out as both a six-family income producer and a one-of-a-kind addition to any portfolio

More Property Details

Room Information

Bedroom: 12   Full Bath: 6  

Property Features

Lot Size: 0.2479   Lot Sq Ft: 8000   Approx. Int. Sq. Ft.: 5380.00   Waterfront Desc: Canal Access  

Appliances & Utilities

Heat: Natural Gas, Other   A/C: Central Air   Water: Public   Sewer: Public Sewer  

Financial

Taxes: $13,586  

Local Area Information

School District: Park Avenue School - Suffolk  

Listing Information provided courtesy of The Agency Northshore NY  631-870-0753
Inquire About This Property

(*) - Required fields

  1. Presented by

    Gold Coast Homes & Estates
    • Gold Coast Homes & Estates
    • Licensed Real Estate Broker
    • (631) 283-1000
    •   Contact Us
OneKey™ MLSThe source of the displayed data is either the property owner or public record provided by non-governmental third parties. It is believed to be reliable but not guaranteed. Information Copyright 2020, OneKey™ MLS
© 2025 Gold Coast Homes & Estates. All rights reserved | Login | DMCA Notice | Search Engine powered by eRealtyMedia.com