Properties 3 of 4 results« Previous property   Next property »

640 Carlls Path, Deer Park, NY, 11729 $699,000

Single Family For Sale 4 Beds , 2 Full Bath , 1530 SqFt 

Property Picture
1 of 21
 
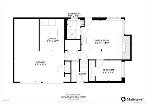
Front of Structure Front of Structure Back of Structure Back of Structure Patio Yard Yard Kitchen Kitchen Kitchen Bathroom Other Other Other Other Living Room Bathroom Kitchen Floor Plan Floor Plan Floor Plan
 

Details ML#: 924804  

  • Style: Hi Ranch
  • Year Built: 1962
  • Taxes: $12,028
  • Status:Active

Description

Welcome to 640 Carlls Straight Path, a high ranch offering a perfect blend of space, comfort, and functionality. This inviting home features oak hardwood floors, a new roof and siding, and a versatile layout ideal for today’s living.Step inside to find a bright and open living room with large bay windows that fill the home with natural light. The formal dining area opens seamlessly to the kitchen, which now includes new stainless steel appliances, making it perfect for gatherings and everyday meals.The upper level offers three generous bedrooms and a full bath, while the lower level provides exceptional flexibility, including a spacious family room with a cozy propane fireplace, additional bedroom, laundry area, and a second full bath, ideal for extended family, guests, or a home office setup.Enjoy the outdoors with a large backyard, a raised deck perfect for entertaining, and a covered patio below for shaded relaxation. The attached two-car garage and wide driveway offer ample parking and convenience.Located close to shopping, parks, and major roadways.

More Property Details

Room Information

Bedroom: 4   Full Bath: 2  

Property Features

Lot Size: 0.203   Lot Sq Ft: 8844   Approx. Int. Sq. Ft.: 1530.00   Garage: Yes   Garage: 2.0   Parking Spaces: Yes   Parking Facilities: Garage   Deck: Yes  

Appliances & Utilities

Heat: Baseboard, Other   A/C: Central Air   Water: Public   Sewer: Cesspool  

Financial

Taxes: $12,028  

Local Area Information

School District: John F Kennedy Intermediate School  

Listing Information provided courtesy of NextHome OrangeDot  631-314-4880
Inquire About This Property

(*) - Required fields

  1. Presented by

    Gold Coast Homes & Estates
    • Gold Coast Homes & Estates
    • Licensed Real Estate Broker
    • (631) 283-1000
    •   Contact Us
OneKey™ MLSThe source of the displayed data is either the property owner or public record provided by non-governmental third parties. It is believed to be reliable but not guaranteed. Information Copyright 2020, OneKey™ MLS
© 2025 Gold Coast Homes & Estates. All rights reserved | Login | DMCA Notice | Search Engine powered by eRealtyMedia.com