Properties 10595 of 19602 results« Previous property   Next property »

79-81 S 3rd Street, Hudson, NY, 12534 $675,500

Single Family For Sale 3 Beds , 2 Full Bath , 2112 SqFt 

Property Picture
1 of 14
 
 

Details ML#: 933721  

  • Style: Other
  • Also for Rent:Yes
  • Year Built: 1870
  • Taxes: $3,440
  • Status:Active

Description

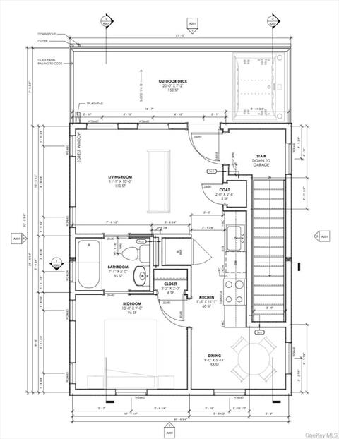
Recently remodeled 3 bed / 2 bath with spacious basement located in the heart of exciting Hudson! Originally built in 1870 and meticulously remodeled in 2024 this home is located a short distance to the city’s Riverfront Park/Boat Launch and bustling Warren St. full of shopping, dining and entertainment. The building is capable of being easily converted back into Two Apartments. Approved Plans for an ADU consisting of a one 1 bed / 1 bath apartment situated above a one car garage are included in sale allowing for new owners to take advantage of quick value appreciation and maximum cash flow. Schedule a time to come to take a look at this beautifully restored timeless beauty right away so that you can appreciate in person all it has to offer from its radiant heat, covered deck, open layout, restored original yellow pine floors to its high ceilings and claw-foot tub.

More Property Details

Room Information

Bedroom: 3   Full Bath: 2   Other: 2  

Property Features

Lot Size: 0.06   Lot Sq Ft: 2614   Approx. Int. Sq. Ft.: 2112.00   Parking Spaces: Yes   Parking Facilities: Alley Access, Driveway   Deck: Yes  

Appliances & Utilities

Heat: Baseboard, Electric, Radiant, Radiant Floor   A/C: None   Water: Public   Sewer: Public Sewer  

Financial

Taxes: $3,440  

Local Area Information

School District: Hudson Falls Primary School  

Listing Information provided courtesy of HomeCoin.com  888-400-2513
Inquire About This Property

(*) - Required fields

  1. Presented by

    Gold Coast Homes & Estates
    • Gold Coast Homes & Estates
    • Licensed Real Estate Broker
    • (631) 283-1000
    •   Contact Us
OneKey™ MLSThe source of the displayed data is either the property owner or public record provided by non-governmental third parties. It is believed to be reliable but not guaranteed. Information Copyright 2020, OneKey™ MLS
© 2025 Gold Coast Homes & Estates. All rights reserved | Login | DMCA Notice | Search Engine powered by eRealtyMedia.com