Properties 10891 of 19602 results« Previous property   Next property »

10 Byram Rd, Carmel, NY, 10512 $650,000

Single Family For Sale 3 Beds , 5 Full Bath , 2100 SqFt 

Property Picture
1 of 49
 
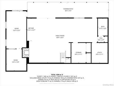
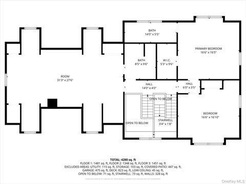
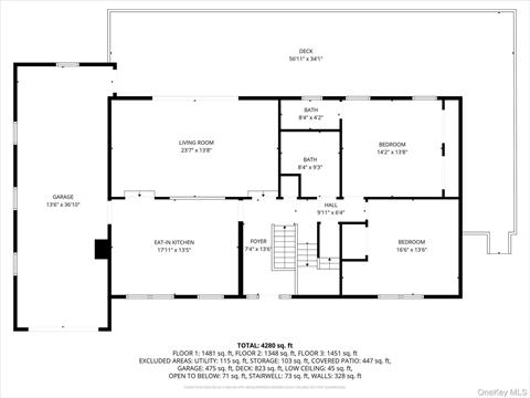
Deck Deck Entry Living Room Living Room Living Room Deck Deck Dining Area Dining Area Kitchen Other Bathroom Bedroom Entry Other Primary Bedroom Primary Bedroom Primary Bathroom Bedroom Bathroom Bedroom Office Family Room Family Room Family Room Family Room Bathroom Other Game Room Game Room Patio Patio Back of Structure Yard Back of Structure Yard Yard View Aerial View Aerial View Aerial View Aerial View Aerial View Aerial View Front of Structure Floor Plan Floor Plan Floor Plan
 

Details ML#: 897400  

  • Style: Contemporary, Exp Ranch, Other
  • Year Built: 1972
  • Taxes: $14,120
  • Status:Active

Description

Enjoy Scenic Lake Views from This Beautiful Contemporary Raised Ranch!This spacious 3BR/5BA home offers breathtaking year-round views of Lake Carmel from a wraparound deck—perfect for relaxing or entertaining. The main level features a bedroom with ensuite bath, a music room, eat-in kitchen, full hall bath, and a bright living room with sliders to the deck.Upstairs boasts a large, inviting primary suite, a third bedroom with ensuite, and an additional office/den. Generous closet space throughout.The finished lower level includes a wet bar, stone fireplace, utilities, and extra storage. Sliding doors lead to a two-tiered backyard ideal for outdoor enjoyment. New furnace (2025) and water heater (2024).There is a whole house generator and a MUSIC STUDIO for the musically inclined!Enjoy all Lake Carmel has to offer—swimming, boating, and summer recreation!

More Property Details

Room Information

Bedroom: 3   Full Bath: 5   Other: 1  

Property Features

Lot Size: 0.22   Lot Sq Ft: 4675   Approx. Int. Sq. Ft.: 2100.00   Garage: Yes   Garage: 2.0   Parking Spaces: Yes   Parking Spaces: 6   Parking Facilities: Attached, Carport, Driveway, Garage   Deck: Yes  

Appliances & Utilities

Heat: Ducts, Forced Air, Oil   A/C: Central Air   Water: Well   Sewer: Septic Tank  

Financial

Taxes: $14,120  

Local Area Information

School District: Kent Elementary  

Listing Information provided courtesy of BHHS River Towns Real Estate  914-271-3300
Inquire About This Property

(*) - Required fields

  1. Presented by

    Gold Coast Homes & Estates
    • Gold Coast Homes & Estates
    • Licensed Real Estate Broker
    • (631) 283-1000
    •   Contact Us
OneKey™ MLSThe source of the displayed data is either the property owner or public record provided by non-governmental third parties. It is believed to be reliable but not guaranteed. Information Copyright 2020, OneKey™ MLS
© 2025 Gold Coast Homes & Estates. All rights reserved | Login | DMCA Notice | Search Engine powered by eRealtyMedia.com