Properties 1207 of 20505 results« Previous property   Next property »

980 Manhanset Avenue, Greenport, NY, 11944 $2,650,000

Single Family For Sale 4 Beds , 3 Full Bath , 1 Half Bath , 2765 SqFt 

Property Picture
1 of 33
 
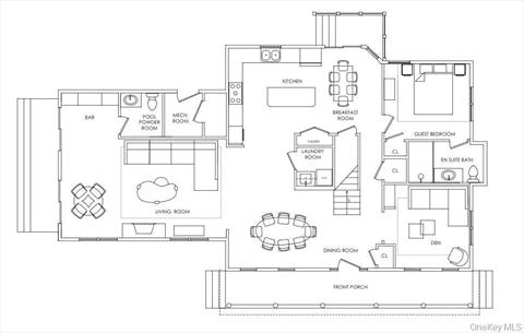
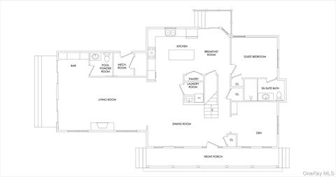
Front of Structure Entry Dining Room Living Room Living Room Bar Bathroom Den Kitchen Breakfast Area Bedroom Bathroom Laundry Bedroom Sitting Room Sitting Room Bathroom Bathroom Bedroom Bedroom Bathroom Pool Pool Yard Front of Structure Aerial View Aerial View Aerial View Floor Plan Floor Plan Dock Floor Plan Floor Plan
 

Details ML#: 915982  

  • Style: Colonial
  • Year Built: 2004
  • Taxes: $12,530
  • Status:Active

Description

This beautifully renovated waterfront home (house is not in a flood zone) offers a seamless blend of modern comfort and timeless coastal style. Set behind an elegant gravel forecourt and surrounded by thoughtful landscaping, the home welcomes you with a classic mahogany front porch and a warm, understated sophistication throughout.Inside, the expanded floor plan opens into spacious, light-filled living areas designed for both everyday living and entertaining. A first-floor ensuite bedroom adds convenience and flexibility. High ceilings and expansive windows frame the water views, filling the space with natural light.The custom chef’s kitchen features top-of-the-line appliances and flows easily into both formal and informal dining areas. The large living room includes a stylish gas fireplace with a frame TV, a game area, and a striking marine-lacquered wet bar. An additional den offers a quiet retreat or extra space for guests.Outdoors, cedar fencing encloses a private backyard oasis with a heated saltwater pool, areas for al fresco dining, and space to relax. Upstairs, two guest bedrooms share a well-appointed designer bath, while the primary suite spans more than half of the upper level. It includes a sitting room or office with harbor views, a cathedral-ceilinged bedroom, a spacious dressing room, and a spa-like bath with soaking tub, large shower, and separate water closet with bidet.Stone steps lead through beach grass to a private floating dock—perfect for boating, kayaking, or paddle boarding. Located just minutes from Greenport village, yet tucked away from the crowds, and near one of the North Fork’s best bay beaches, this home offers the ideal balance of serenity and convenience.

More Property Details

Room Information

Bedroom: 4   Full Bath: 3   Half Bath: 1   Other: 2  

Property Features

Lot Size: 0.33   Lot Sq Ft: 14375   Approx. Int. Sq. Ft.: 2765.00   Parking Spaces: Yes   Parking Spaces: 6   Parking Facilities: Driveway, Off Street   Deck: Yes   Existing Structures: Yes    Waterfront: Yes   Waterfront Desc: Bulkhead, Creek, Water Access, Waterfront  

Appliances & Utilities

Heat: Forced Air, Oil   A/C: Central Air, Zoned   Water: Public   Sewer: Septic Tank  

Financial

Taxes: $12,530  

Local Area Information

School District: Greenport Elementary School  

Listing Information provided courtesy of Compass Greater NY LLC  631-905-8132
Inquire About This Property

(*) - Required fields

  1. Presented by

    Gold Coast Homes & Estates
    • Gold Coast Homes & Estates
    • Licensed Real Estate Broker
    • (631) 283-1000
    •   Contact Us
OneKey™ MLSThe source of the displayed data is either the property owner or public record provided by non-governmental third parties. It is believed to be reliable but not guaranteed. Information Copyright 2020, OneKey™ MLS
© 2025 Gold Coast Homes & Estates. All rights reserved | Login | DMCA Notice | Search Engine powered by eRealtyMedia.com