Properties 12250 of 19507 results« Previous property   Next property »

672 Waterbury Hill Rd, Lagrangeville, NY, 12540 $569,000

Single Family For Sale 3 Beds , 3 Full Bath , 2200 SqFt 

Property Picture
1 of 49
 
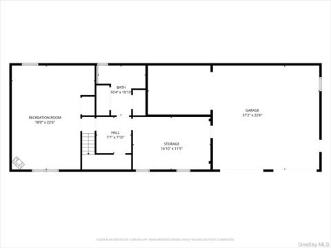
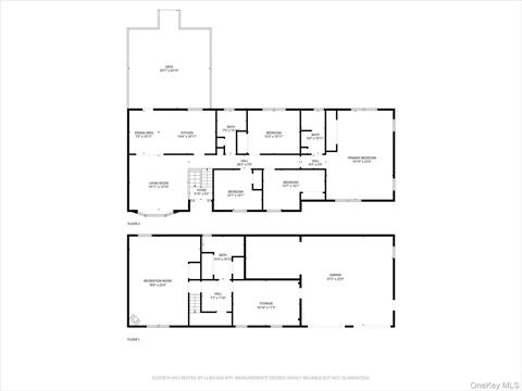
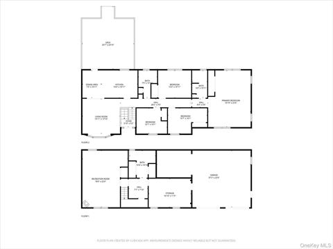
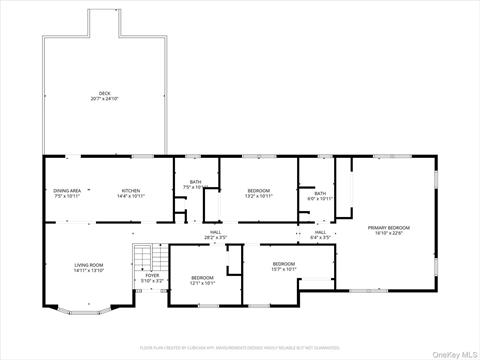
Front of Structure Aerial View Aerial View Front of Structure Front of Structure Front of Structure Entry Other Living Room Living Room Living Room Dining Area Dining Area Dining Area Kitchen Kitchen Kitchen Kitchen Kitchen Bathroom Bedroom Bedroom Bedroom Bathroom Bedroom Bedroom Bedroom Living Room Living Room Living Room Bathroom Other Deck Deck Deck Yard Back of Structure Back of Structure Yard Yard Yard Aerial View Aerial View Front of Structure Floor Plan Floor Plan Floor Plan Floor Plan Floor Plan
 

Details ML#: 919234  

  • Style: Raised Ranch
  • Year Built: 1982
  • Taxes: $6,648
  • Status:Active

Description

Discover the perfect blend of comfort and tranquility in this well-maintained expanded home, featuring almost 2, 400 square feet set on nearly 3 lush acres. Tucked away from the road, this home offers a serene country setting, backing up to forever-green property, all while being part of the Millbrook School district. The standout feature is the massive addition of the primary bedroom suite, which offers versatility as a spacious family room. With up to 3/4 bedrooms and 3 full baths, this home is perfect for growing families or those welcoming extended family. The beautifully designed kitchen features solid hickory soft-closing cabinets, a slate backsplash, double sinks, a breakfast counter, red oak flooring, and ample storage for all your culinary needs. Light and Bright Open Floorplan with wood flooring, recessed lighting, 6-panel doors, an attic fan, and upgraded 200-amp electric.The lower level features a cozy recreation room with stylish wainscoting, alongside a mudroom, full bathroom, laundry area, and an additional room ready for your personal touch, with plenty of possibilities, including the perfect in-law setup. Enjoy the outdoors on the expansive deck, overlooking a private, peaceful backyard that’s perfect for relaxation or entertaining. This home also includes an oversized 2-car garage with a storage/workshop area. Enjoy all the recreation, restaurants, and shopping that the Hudson Valley has to offer, plus low taxes!

More Property Details

Room Information

Bedroom: 3   Full Bath: 3   Other: 2  

Property Features

ConstructionMaterials: Lighting, Mailbox   Lot Size: 2.81   Lot Sq Ft: 122404   Approx. Int. Sq. Ft.: 2200.00   Garage: Yes   Garage: 2.0   Parking Spaces: Yes   Parking Facilities: Attached, Driveway, Garage, Garage Door Opener   Deck: Yes  

Appliances & Utilities

Heat: Baseboard, Electric, Other   A/C: Wall/Window Unit(s)   Water: Well   Sewer: Septic Tank  

Financial

Taxes: $6,648  

Local Area Information

School District: Elm Drive Elementary School  

Listing Information provided courtesy of RE/MAX Town & Country  845-765-6128
Inquire About This Property

(*) - Required fields

  1. Presented by

    Gold Coast Homes & Estates
    • Gold Coast Homes & Estates
    • Licensed Real Estate Broker
    • (631) 283-1000
    •   Contact Us
OneKey™ MLSThe source of the displayed data is either the property owner or public record provided by non-governmental third parties. It is believed to be reliable but not guaranteed. Information Copyright 2020, OneKey™ MLS
© 2025 Gold Coast Homes & Estates. All rights reserved | Login | DMCA Notice | Search Engine powered by eRealtyMedia.com