Properties 13183 of 20749 results« Previous property   Next property »

3034 Mickle Avenue, Bronx, NY, 10469 $565,000

Single Family For Sale 2 Beds , 1 Full Bath , 1 Half Bath , 1120 SqFt 

Property Picture
1 of 31
 
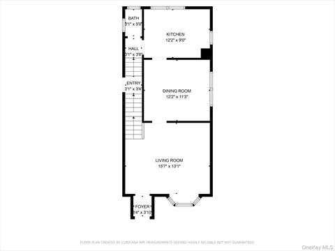
Front of Structure Front of Structure Front of Structure Front of Structure Living Room Living Room Living Room Dining Area Dining Area Kitchen Bathroom Living Room Bedroom Bedroom Bedroom Bedroom Bathroom Storage Garage Other Patio Patio Yard Balcony Aerial View Aerial View Aerial View Floor Plan Floor Plan Floor Plan Floor Plan
 

Details ML#: 903529  

  • Style: Colonial
  • Year Built: 1920
  • Taxes: $5,031
  • Status:Active

Description

Welcome to this well-maintained detached single-family in Baychester, proudly cared for by the same family for four decades. Set on a generous lot, the home features a shared driveway and a full 1-car garage tucked behind the residence for added privacy. Inside, a comfortable layout includes a sunlit living room, a true separate dining room, a functional kitchen on the main level and a half bath. The finished basement expands your living options—ideal for a media room, home office, gym, or guest space. The upper level offers two bedrooms and a full baths. Outdoors, the expansive yard is ready for summer BBQs, gardening, and quiet relaxation—your own city oasis. All of this moments from Baychester’s shopping, dining, parks, local highways, and public transportation. A rare find with long-term pride of ownership.

More Property Details

Room Information

Bedroom: 2   Full Bath: 1   Half Bath: 1   Other: 1  

Property Features

Lot Size: 0.0545   Lot Sq Ft: 2375   Approx. Int. Sq. Ft.: 1120.00   Garage: Yes   Garage: 1.0  

Appliances & Utilities

Heat: Natural Gas   A/C: None   Water: Public   Sewer: Other, Public Sewer  

Financial

Taxes: $5,031  

Local Area Information

School District: Ps 121 Throop  

Listing Information provided courtesy of EXIT Realty Private Client  718-684-6620
Inquire About This Property

(*) - Required fields

  1. Presented by

    Gold Coast Homes & Estates
    • Gold Coast Homes & Estates
    • Licensed Real Estate Broker
    • (631) 283-1000
    •   Contact Us
OneKey™ MLSThe source of the displayed data is either the property owner or public record provided by non-governmental third parties. It is believed to be reliable but not guaranteed. Information Copyright 2020, OneKey™ MLS
© 2025 Gold Coast Homes & Estates. All rights reserved | Login | DMCA Notice | Search Engine powered by eRealtyMedia.com