Properties 13444 of 20505 results« Previous property   Next property »

5 Torrey Pine Lane, Medford, NY, 11763 $535,000

Single Family For Sale 4 Beds , 2 Full Bath , 1716 SqFt 

Property Picture
1 of 30
 
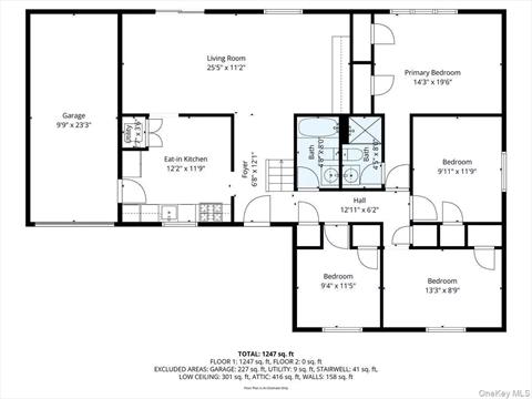
Front of Structure Front of Structure Front of Structure Aerial View Other Kitchen Kitchen Dining Area Other Living Room Other Living Room Other Bedroom Office Office Other Bedroom Other Other Bathroom Bathroom Yard Yard Aerial View Aerial View Back of Structure Aerial View Floor Plan Floor Plan
 

Details ML#: 928002  

  • Style: Ranch
  • Year Built: 1972
  • Taxes: $8,289
  • Status:Active

Description

Four Bedroom, Two Bath Ranch in highly desired Pines section of Medford. This home is waiting for the new owner to arrive and make it their own. Original one owner. Beautiful manicured front yard featuring a driveway with easy four car parking. Inside is a perfect layout waiting for custom touches. Two full baths on the first floor. Four bedrooms feature ample closet space. Upstairs features a gigantic walk up attic space with room for everything. 150 amp electric. Out back an oversized fenced in scenic yard waits for large family gatherings. Do not miss your opportunity to take this solid foot print and make it your own in this low tax and highly convenient area of Long Island. Property being sold as is.

More Property Details

Room Information

Bedroom: 4   Full Bath: 2   Other: 3  

Property Features

Lot Size: 0.31   Lot Sq Ft: 13504   Approx. Int. Sq. Ft.: 1716.00   Garage: Yes   Garage: 1.0   Parking Spaces: Yes   Parking Spaces: 4   Parking Facilities: Driveway  

Appliances & Utilities

Heat: Oil   A/C: Ductless   Water: Public   Sewer: Public Sewer  

Financial

Taxes: $8,289  

Local Area Information

School District: Barton Elementary School  

Listing Information provided courtesy of In Site Realty LLC  516-953-9500
Inquire About This Property

(*) - Required fields

  1. Presented by

    Gold Coast Homes & Estates
    • Gold Coast Homes & Estates
    • Licensed Real Estate Broker
    • (631) 283-1000
    •   Contact Us
OneKey™ MLSThe source of the displayed data is either the property owner or public record provided by non-governmental third parties. It is believed to be reliable but not guaranteed. Information Copyright 2020, OneKey™ MLS
© 2025 Gold Coast Homes & Estates. All rights reserved | Login | DMCA Notice | Search Engine powered by eRealtyMedia.com