Properties 13599 of 19829 results« Previous property   Next property »

15 Lindentree Lane, Middletown, NY, 10940 $489,900

Single Family For Sale 3 Beds , 2 Full Bath , 1 Half Bath , 1827 SqFt 

Property Picture
1 of 40
 
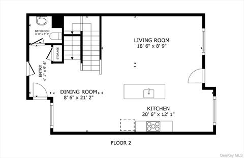
Front of Structure Dining Area Dining Area Kitchen Kitchen Dining Area Kitchen Kitchen Kitchen Living Room Kitchen Living Room Bedroom Bedroom Bathroom Bathroom Bedroom Bedroom Office Office Bathroom Laundry Exercise Room Other Exercise Room Garage Aerial View Back of Structure Yard Aerial View Community Community Other Pool Pool Other Floor Plan Floor Plan Floor Plan Floor Plan
 

Details ML#: 930168  

  • Year Built: 2017
  • Taxes: $8,450
  • Status:Active

Description

Almost new Townhome in Maples Field is waiting for you! Welcome to our Spacious 3 bedroom, 2.5 bathroom home with 3 levels of space! Enter the open floor plan with hardwood flooring, sun filled living room and dining area. The kitchen features oversized cabinetry with granite countertops, stainless steel appliances and a center island that is perfect for entertaining! Step onto the lovely patio and enjoy privacy to unwind. The lower level offers high ceilings, storage and large window making this the perfect space to escape the day! The upper-level bedroom area offers a Primary bedroom large enough for a true King Bedroom set with a Spa like bathroom featuring a jetted tub, shower, double vanity and huge walk-in closet. There are two additional bedrooms both large and feature walk in closets as well. The main hall bathroom is tiled with a full laundry closet just outside the door. Each closet has a ceiling light. There are over 5 Short Line Bus stops in and around Middletown. The train to Manhattan is within 3 miles of the home! Orange County is the perfect area to live your life away from the Busy City! Come home to Orange County! Open House Saturday November 8th from 12am-2pm

More Property Details

Room Information

Bedroom: 3   Full Bath: 2   Half Bath: 1   Other: 2  

Property Features

Lot Size: 0.07   Lot Sq Ft: 3013   Approx. Int. Sq. Ft.: 1827.00   Garage: Yes   Garage: 2.0   Parking Spaces: Yes   Parking Spaces: 4   Parking Facilities: Garage, Garage Door Opener  

Appliances & Utilities

Heat: Forced Air   A/C: Central Air   Water: Public   Sewer: Public Sewer  

Financial

Taxes: $8,450  

Local Area Information

School District: WILLIAM A CARTER SCHOOL  

Listing Information provided courtesy of Real Estate Circuit Inc  845-344-1480
Inquire About This Property

(*) - Required fields

  1. Presented by

    Gold Coast Homes & Estates
    • Gold Coast Homes & Estates
    • Licensed Real Estate Broker
    • (631) 283-1000
    •   Contact Us
OneKey™ MLSThe source of the displayed data is either the property owner or public record provided by non-governmental third parties. It is believed to be reliable but not guaranteed. Information Copyright 2020, OneKey™ MLS
© 2025 Gold Coast Homes & Estates. All rights reserved | Login | DMCA Notice | Search Engine powered by eRealtyMedia.com