Properties 15508 of 19829 results« Previous property   Next property »

31 Lawrence Rd, Hyde Park, NY, 12538 $365,000

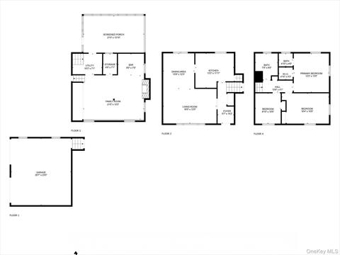
Single Family For Sale 3 Beds , 1 Full Bath , 1 Half Bath , 1838 SqFt 

Property Picture
1 of 40
 
Front of Structure Front of Structure Back of Structure Side of Structure Yard Community Other Living Room Living Room Living Room Living Room Dining Area Dining Area Dining Area Dining Area Dining Area Kitchen Kitchen Kitchen Other Kitchen Kitchen Dining Area Office Bedroom Bedroom Bathroom Bathroom Sun Room Patio Laundry Basement Basement Bar Bar Other Garage Basement Floor Plan Other
 

Details ML#: 909640  

  • Style: Split Level
  • Year Built: 1962
  • Taxes: $9,633
  • Status:Active

Description

Welcome to 31 Lawrence Road! This charming split-level home is filled with natural light and offers a warm, inviting atmosphere. Features include beautiful hardwood floors, new carpeting in the bedrooms, and a new screen door. The property has been upgraded with modern electric systems, including new circuit breakers, and both the kitchen and bathrooms are equipped with new outlets. Enjoy peace of mind with a owned water softener and filtration system. The roof, approximately 13 years old, and windows, around 7 years old, add to the home’s durability and efficiency. Relax and unwind on the delightful screened-in porch, perfect for sipping your morning coffee while overlooking your private backyard oasis. Enjoy the cold fall days in the finished family room with fireplace.Don’t miss the opportunity to make this wonderful house your forever home—schedule your visit today!

More Property Details

Room Information

Bedroom: 3   Full Bath: 1   Half Bath: 1   Other: 4  

Property Features

Lot Size: 0.97   Lot Sq Ft: 42253   Approx. Int. Sq. Ft.: 1838.00   Garage: Yes   Garage: 2.0   Parking Spaces: Yes   Parking Spaces: 8   Parking Facilities: Driveway, Garage  

Appliances & Utilities

Refrigerator: Yes   Heat: Oil   A/C: None   Water: Public   Sewer: Septic Tank  

Financial

Taxes: $9,633  

Local Area Information

School District: Ralph R Smith School   Block: 2   Lot: 859  

Listing Information provided courtesy of Howard Hanna Rand Realty  845-621-8300
Inquire About This Property

(*) - Required fields

  1. Presented by

    Gold Coast Homes & Estates
    • Gold Coast Homes & Estates
    • Licensed Real Estate Broker
    • (631) 283-1000
    •   Contact Us
OneKey™ MLSThe source of the displayed data is either the property owner or public record provided by non-governmental third parties. It is believed to be reliable but not guaranteed. Information Copyright 2020, OneKey™ MLS
© 2025 Gold Coast Homes & Estates. All rights reserved | Login | DMCA Notice | Search Engine powered by eRealtyMedia.com