Properties 15810 of 20505 results« Previous property   Next property »

73-08 220th Street Unit Lower, 405B1, Oakland Gardens, NY, 11364 $380,000

Coop For Sale 2 Beds , 1 Full Bath , 800 SqFt 

Property Picture
1 of 21
 
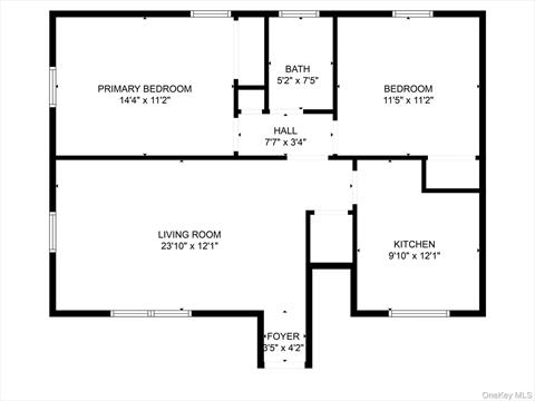
Community Community Entry Other Living Room Entry Living Room Kitchen Kitchen Kitchen Bathroom Bedroom Bedroom Bedroom Bedroom Aerial View Aerial View Aerial View Aerial View Aerial View Floor Plan
 

Details ML#: 914680  

  • Style: Garden
  • Year Built: 1950
  • Status:Active

Description

Welcome to Windsor Oaks Community of Oakland Gardens. This spacious first floor unit offers a large 2-bedroom, 1-bath layout with the convenience of ground level access. Step inside to find an updated kitchen, refinished hardwood floors, custom built-ins, and modern light fixtures to make this home both stylish and functional. Nestled within Windsor Oaks’ beautifully maintained grounds, this residence provides a park-like setting while still being close to everything you need. Laundry is available on-site, with the option to install your own washer and dryer. Enjoy unbeatable convenience with shopping, dining, and schools nearby, plus easy access to the Q88, Q27, and Q30 buses for commuting. Outdoor enthusiast will love the proximity to Alley Pond Park and Cunningham Park.

More Property Details

Animals Policy: Cats OK, Dogs OK, Number Limit, Size Limit

Room Information

Bedroom: 2   Full Bath: 1   Other: 1  

Property Features

Approx. Int. Sq. Ft.: 800.00   Parking Spaces: Yes   Parking Spaces: 2   Parking Facilities: Garage, On Street, Parking Lot, Unassigned, Waitlist   Stories: 2  

Appliances & Utilities

Heat: Hot Water, Natural Gas   A/C: Wall/Window Unit(s)   Water: Public   Sewer: Public Sewer  

Local Area Information

School District: Ps 203 Oakland Gardens  

Listing Information provided courtesy of Keller Williams Rty Gold Coast  516-482-0200
Inquire About This Property

(*) - Required fields

  1. Presented by

    Gold Coast Homes & Estates
    • Gold Coast Homes & Estates
    • Licensed Real Estate Broker
    • (631) 283-1000
    •   Contact Us
OneKey™ MLSThe source of the displayed data is either the property owner or public record provided by non-governmental third parties. It is believed to be reliable but not guaranteed. Information Copyright 2020, OneKey™ MLS
© 2025 Gold Coast Homes & Estates. All rights reserved | Login | DMCA Notice | Search Engine powered by eRealtyMedia.com