Properties 16683 of 19602 results« Previous property   Next property »

1020 Grand Concourse Unit 24W, Bronx, NY, 10451 $295,000

Coop For Sale 1 Beds , 1 Full Bath , SqFt 

Property Picture
1 of 16
 
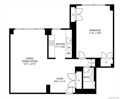
Living Room Aerial View Living Room Other Dining Area Kitchen Bedroom Bathroom Living Room Other Other Entry Kitchen Bedroom Front of Structure Floor Plan
 

Details ML#: 931925  

  • Style: Other
  • Year Built: 1963
  • Status:Active

Description

A rare opportunity to acquire a top-floor residence at 1020 Grand Concourse, offering sweeping open views to the northeast and the higher ceilings found only on this level. The added height gives the home exceptional volume and a sense of airiness and sophistication that make it truly stand apart. In good condition throughout, it’s ready to move right in—or can easily be customized to your own taste. The entire apartment has been freshly painted, creating a bright and welcoming atmosphere.Enter through a gracious open foyer that leads into the oversized living and dining room—an elegant, flexible space ideal for refined daily living and entertaining alike. The layout is perfectly conceived, maximizing every inch of space while maintaining a clear separation between the public and private areas of the home. The windowed kitchen features all-new stainless-steel appliances, including an over-the-range microwave and dishwasher, while the renovated bathroom adds a touch of contemporary polish. There is also ample room for a home office area, whether in the bedroom or the living room, for those who wish to work from home. An oversized foyer closet, two bedroom closets, and a separate linen closet provide outstanding storage throughout.The building is currently undertaking two major improvement projects: the installation of new green roofs, including one over the attached garage that will serve as a shared outdoor space for residents, and an exterior restoration program that will further enhance the property’s already strong curb appeal. The assessment funding these improvements is being completely paid by the seller.Designed by the renowned architect Philip Birnbaum and completed in 1963, 1020 Grand Concourse occupies the prominent corner of 165th Street directly across from the Bronx Museum of Art. The building’s distinguished mid-century design is matched by exceptional convenience—minutes from the B, D, and 4 trains, multiple bus lines, shopping, and local services. Four nearby parks create a verdant urban environment that brings together the best of city living and outdoor recreation—yet it’s only 20 minutes from Midtown Manhattan.Enjoy full-service living with nothing overlooked in this exceptionally well-managed and financially stable cooperative. From the integrated central air-conditioning and heating system to the 24-hour building staff, residents are cared for impeccably—and the low maintenance includes gas and electricity.Building features include:• 24-hour doorman and security• On-site attached garage with available assigned spaces for residents (at additional cost)• 24-hour laundry rooms• Live-in super• On-site management office• BuildingLink system for communication and delivery notifications• Bicycle storage room• Restored historic tile entrance canopy• New automatic entry doors and lighting• And more upgrades to come, including a planned fitness room for residentsSome photographs virtually staged. All showings are by appointment, even during open-house times.

More Property Details

Animals Policy: Cats OK, Dogs OK

Room Information

Bedroom: 1   Full Bath: 1   Other: 1  

Property Features

Approx. Int. Sq. Ft.: 0.00   Garage: Yes   Garage: 0.0   Parking Spaces: Yes   Parking Facilities: Garage  

Appliances & Utilities

Heat: See Remarks   A/C: Central Air   Water: Public   Sewer: Public Sewer  

Local Area Information

School District: Concourse Village Elementary School  

Listing Information provided courtesy of Bank Neary Inc  212-633-2727
Inquire About This Property

(*) - Required fields

  1. Presented by

    Gold Coast Homes & Estates
    • Gold Coast Homes & Estates
    • Licensed Real Estate Broker
    • (631) 283-1000
    •   Contact Us
OneKey™ MLSThe source of the displayed data is either the property owner or public record provided by non-governmental third parties. It is believed to be reliable but not guaranteed. Information Copyright 2020, OneKey™ MLS
© 2025 Gold Coast Homes & Estates. All rights reserved | Login | DMCA Notice | Search Engine powered by eRealtyMedia.com