Properties 17521 of 20749 results« Previous property   Next property »

995 Betty Brook Rd, Call Listing Agent, NY, 13842 $290,000

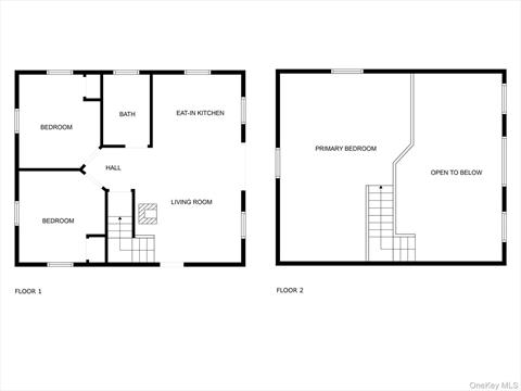
Single Family For Sale 3 Beds , 1 Full Bath , 1008 SqFt 

Property Picture
1 of 46
 
Aerial View Community Other Back of Structure Aerial View Back of Structure Aerial View Aerial View Side of Structure Deck Deck Other Balcony Other Other Yard Side of Structure Living Room Other Living Room Kitchen Kitchen Kitchen Kitchen Other Exercise Room Laundry Other Sitting Room Bathroom Bedroom Bedroom Floor Plan Aerial View Other Garage Aerial View Aerial View Aerial View Other Other Aerial View Aerial View Other Other Other
 

Details ML#: 917845  

  • Style: Chalet
  • Year Built: 1991
  • Taxes: $3,997
  • Status:Active

Description

Tucked away on a quiet, maintained road minutes from dining, shopping, skiing, golf, & hiking, this cedar-sided chalet is the perfect Catskill Mountain retreat, offering privacy & seclusion.Set on 5.25+/- acres, the property is alive with nature: apple trees, birdsong, wildlife, stone walls, & the soothing presence of Betty Brook at the edge of the property. A pond offers plenty of enjoyment—skate in winter, paddle in summer (pond can tend to dry up in the height of summer), or simply sit & enjoy the chorus of spring peepers. Every season here brings its own magic, from lush greenery to fiery autumn ridgelines & peaceful winters.The chalet opens to a welcoming great room with vaulted ceiling & woodstove, creating a perfect cozy Catskill atmosphere. An eat-in kitchen with new Bosch dishwasher flows seamlessly to the living space. Step outside through new sliding doors onto a wrap-around deck with mountain views—ideal for entertaining or simply soaking in the peace of the setting. After a day of adventure, unwind in your own outdoor cedar hot tub beneath the stars.This home features 3 bedrooms (including loft-style bedroom upstairs) & upgraded bathroom. Practical upgrades include new flooring, a radon mitigation system, Rinnai on-demand water heater, Anderson windows, 200-amp electric service, an encapsulated, temperature-controlled crawl space/cellar, new LG washer & dryer, high speed Internet, & electric baseboard heat. A garage and storage container provide plenty of space. Even better—the sellers are including everything you need to maintain the property and live comfortably: raised garden beds, gas snow blower, EGO lawn mower, trimmer, leaf blower with gutter attachment, spa chemicals, & kitchen island with chairs.From the moment you turn into the driveway & watch the home emerge against the valley backdrop, it’s clear this is a special place—a cozy sanctuary that balances peace, nature, & convenience.Whether you’re watching autumn’s colors blaze across the ridge, exploring winter trails on snowshoes, or sipping coffee on the deck as the pond reflects the sun, this chalet offers the ultimate Catskill Mountain lifestyle. Come take a look!

More Property Details

Room Information

Bedroom: 3   Full Bath: 1   Other: 2  

Property Features

Lot Size: 5.25   Lot Sq Ft: 228690   Approx. Int. Sq. Ft.: 1008.00   Garage: Yes   Garage: 1.0   Parking Spaces: Yes   Parking Facilities: Detached   Waterfront: Yes   Waterfront Desc: Pond, Stream, Water Access, Waterfront  

Appliances & Utilities

Heat: Baseboard, Electric, Wood   A/C: None   Water: Well   Sewer: Septic Tank  

Financial

Taxes: $3,997  

Local Area Information

School District: South Kortright Central School  

Listing Information provided courtesy of Coldwell Banker Timberland  
Inquire About This Property

(*) - Required fields

  1. Presented by

    Gold Coast Homes & Estates
    • Gold Coast Homes & Estates
    • Licensed Real Estate Broker
    • (631) 283-1000
    •   Contact Us
OneKey™ MLSThe source of the displayed data is either the property owner or public record provided by non-governmental third parties. It is believed to be reliable but not guaranteed. Information Copyright 2020, OneKey™ MLS
© 2025 Gold Coast Homes & Estates. All rights reserved | Login | DMCA Notice | Search Engine powered by eRealtyMedia.com