Properties 18544 of 19602 results« Previous property   Next property »

128 Forest Park, Wallkill, NY, 12589 $165,500

Commercial For Sale 3 Beds , 2 Full Bath , 1056 SqFt 

Property Picture
1 of 19
 
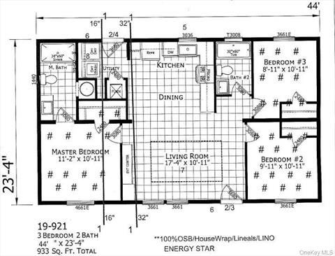
Front of Structure Other Kitchen Kitchen Kitchen Dining Area Mud Room Other Other Bedroom Bathroom Other Bedroom Living Room Laundry Other Bedroom Bathroom Floor Plan
 

Details ML#: 910303  

  • Style: Other, Ranch
  • Year Built: 2025
  • Status:Active

Description

This is gorgeous brand new home with 3 bedrooms and 2 bathrooms! It has a modern contemporary feel and it is ready to be yours. Home is located in a fantastic commuter friendly location. Bright and airy 3 bedroom, 2 bath home with close to 1, 100 square feet of space! Features large kitchen with an abundance of beautiful rich shaker style cabinets, stainless steel farm sink and stainless steel appliances (features a gas stove), wide open floor plan and large open living room area. Spacious family /living room with tons of natural light and a built in media center with shiplap accent wall. The primary bedroom has a full on-suite bathroom featuring an amazing walk in shower and a huge walk in closet. Two additional nice sized bedrooms, and a full guest bathroom are on the opposite end of the home offering privacy. Features include gorgeous cabinets, vinyl flooring throughout, recessed lighting, tray ceiling, oversized side deck which is a great place to relax, entertain and bbq, Two car driveway and so much more! All this and Wallkill Schools too! Convenient commuter location. 10 minutes to Newburgh 84/87 and 70 Miles to NYC. Near West Point, Stewart Airport, Beacon Bridge, Ferry, Metro North, 17, 84 and 87. Call now this one will go very fast!

More Property Details

Room Information

Bedroom: 3   Full Bath: 2  

Property Features

Lot Size: 0   Approx. Int. Sq. Ft.: 1056.00   Parking Spaces: Yes   Parking Spaces: 2   Parking Facilities: Driveway  

Appliances & Utilities

Heat: Forced Air, Propane   A/C: None   Water: Private   Sewer: Other  

Local Area Information

School District: Plattekill Elementary School  

Listing Information provided courtesy of Howard Hanna Rand Realty  845-562-0050
Inquire About This Property

(*) - Required fields

  1. Presented by

    Gold Coast Homes & Estates
    • Gold Coast Homes & Estates
    • Licensed Real Estate Broker
    • (631) 283-1000
    •   Contact Us
OneKey™ MLSThe source of the displayed data is either the property owner or public record provided by non-governmental third parties. It is believed to be reliable but not guaranteed. Information Copyright 2020, OneKey™ MLS
© 2025 Gold Coast Homes & Estates. All rights reserved | Login | DMCA Notice | Search Engine powered by eRealtyMedia.com