Properties 2132 of 19487 results« Previous property   Next property »

3 South Run, Cold Spring Harbor, NY, 11724 $1,850,000

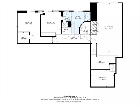
Single Family For Sale 4 Beds , 3 Full Bath , 3300 SqFt 

Property Picture
1 of 27
 
Yard Front of Structure Entry Aerial View Living Room Living Room Sun Room Living Room Other Dining Area Kitchen Kitchen Bedroom Other Bathroom Living Room Living Room Other Bathroom Deck Front of Structure Aerial View Yard Aerial View Floor Plan Floor Plan Floor Plan
 

Details ML#: 856859  

  • Style: Ranch
  • Year Built: 1954
  • Taxes: $23,519
  • Status:Active

Description

Unmatched value! This 3, 300 SF (4 bedroom, 3-bath) home sits on a commanding 2.55 acre hilltop site, with 360-degree privacy that enhances the estate-type grounds off a quiet cul-de-sac. Enjoy seasonal harbor views through the trees—or add a second story for year-round harbor vistas. A rare find at this price combines luxury, privacy, on one of the best multi-acre sites in all of Cold Spring Harbor. A grand welcoming entrance drive leads to this well-sited home that boasts a sunlit living room with hardwood floors and oversized windows showcasing sweeping serene, bucolic views in a park-like setting. The main level features a primary en-suite, a guest bedroom, and a versatile office/den that could easily become an additional fifth bedroom. The spacious eat-in kitchen opens to a covered porch - perfect for seamless indoor/outdoor entertaining. At garden level, discover two more bedrooms, a luxurious marble bath, and a sprawling entertainment room, ideal for movie nights or hosting guests. Conveniently located near the Cold Spring Harbor Train Station (5 minutes away), Jerico Turnpike and LIE, moments from Eagle Dock Beach (dues required), local state park trails and located in the top-ranked Cold Spring Harbor School District #2.

More Property Details

Room Information

Bedroom: 4   Full Bath: 3   Other: 2  

Property Features

Approx. Int. Sq. Ft.: 3300.00   Garage: Yes   Garage: 2.0   Parking Spaces: Yes   Parking Facilities: Private, Attached   Deck: Yes   Porch Description: Yes   Beach Rights: Yes   Waterfront Desc: Beach Access  

Appliances & Utilities

Heat: Oil, Baseboard   A/C: Central Air   Water: Public   Sewer: Cesspool  

Financial

Taxes: $23,519  

Local Area Information

School District: West Side School   Block: 0001   Lot: 28 & 29  

Listing Information provided courtesy of Daniel Gale Sothebys Intl Rlty  631-692-6770
Inquire About This Property

(*) - Required fields

  1. Presented by

    Gold Coast Homes & Estates
    • Gold Coast Homes & Estates
    • Licensed Real Estate Broker
    • (631) 283-1000
    •   Contact Us
OneKey™ MLSThe source of the displayed data is either the property owner or public record provided by non-governmental third parties. It is believed to be reliable but not guaranteed. Information Copyright 2020, OneKey™ MLS
© 2025 Gold Coast Homes & Estates. All rights reserved | Login | DMCA Notice | Search Engine powered by eRealtyMedia.com