Properties 2414 of 19507 results« Previous property   Next property »

84-15 120th Street, Kew Gardens, NY, 11415 $1,700,000

Multi Family For Sale 6 Beds , 2 Full Bath  

Property Picture
1 of 8
 
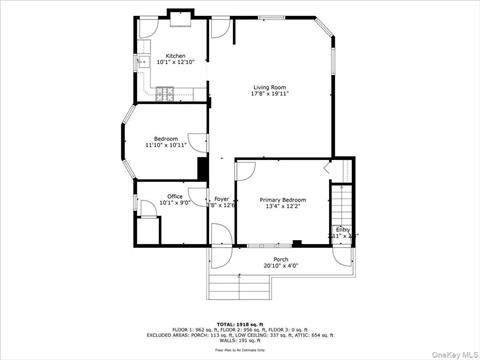
Front of Structure Front of Structure Back of Structure Parking Yard Floor Plan Floor Plan Floor Plan
 

Details ML#: 906355  

  • Style: Colonial
  • # of Families: 2
  • Year Built: 1920
  • Taxes: $9,730
  • Status:Active

Description

Investment opportunity in the heart of Kew Gardens! This updated two-family home offers a total of 3 bedrooms and 1 bath on each floor, featuring spacious living rooms, dining areas, and modern eat-in kitchens. Hardwood floors, central air, and split units provide both charm and comfort. The property sits on a 50 × 100 lot, with an additional 15 × 100 side lot, for a combined 6, 500 sq. ft. of land. Bonus features include a full finished attic with stair access (great for storage or expansion potential), a full basement, a private yard, driveway, and carport. This home can be purchased individually or as part of a rare 16, 500 sq. ft. package deal with neighboring properties 84-20 and 84-25 120th Street. Proposed up zoning from R4 to R6 presents a major development opportunity. Located near the E & F Trains, Kew Gardens LIRR, Metropolitan Avenue, local dining, and houses of worship.

More Property Details

Room Information

Bedroom: 6   Full Bath: 2  

Property Features

Lot Size: 0.1148   Lot Sq Ft: 6500   Parking Spaces: Yes   Parking Facilities: Driveway, Off Street, On Street  

Appliances & Utilities

Heat: Baseboard, Natural Gas   A/C: Wall/Window Unit(s)   Water: Public   Sewer: Public Sewer  

Financial

Taxes: $9,730  

Local Area Information

School District: Ps 56 Harry Eichler  

Listing Information provided courtesy of Keller Williams Rlty Landmark  718-475-2700
Inquire About This Property

(*) - Required fields

  1. Presented by

    Gold Coast Homes & Estates
    • Gold Coast Homes & Estates
    • Licensed Real Estate Broker
    • (631) 283-1000
    •   Contact Us
OneKey™ MLSThe source of the displayed data is either the property owner or public record provided by non-governmental third parties. It is believed to be reliable but not guaranteed. Information Copyright 2020, OneKey™ MLS
© 2025 Gold Coast Homes & Estates. All rights reserved | Login | DMCA Notice | Search Engine powered by eRealtyMedia.com