Properties 6877 of 19507 results« Previous property   Next property »

2318 A Corporal Kennedy Street Unit 95, Bayside, NY, 11360 $899,000

Condo For Sale 3 Beds , 1 Full Bath , 1 Half Bath , 1300 SqFt 

Property Picture
1 of 25
 
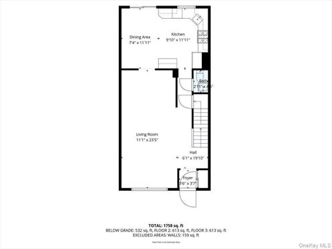
Front of Structure Community Kitchen Kitchen Kitchen Dining Area Bathroom Living Room Living Room Living Room Other Bathroom Bedroom Bedroom Bedroom Bedroom Office Laundry Deck Community Aerial View Floor Plan Floor Plan Floor Plan Floor Plan
 

Details ML#: 923917  

  • Year Built: 1966
  • Taxes: $6,959
  • Status:Active

Description

Bayside Townhouse Condo – C Line, Welcome to your dream home in one of Bayside’s most sought-after developments. Peaceful, private, and tucked away from the street for ultimate tranquility. This spacious triplex townhouse offers the perfect blend of house-like living with the ease of condo ownership. Featuring 3 bedrooms, 1.5 beautifully renovated bathrooms, a custom kitchen, and a finished basement plus attic, this C Line unit is thoughtfully designed for comfort and style. Step outside to your private backyard oasis, ideal for relaxing, entertaining, or enjoying time with your pup—yes, this dog-friendly community welcomes furry friends! Enjoy private parking, landscaping, snow removal, and water included in your maintenance—because life should be effortless. The condo association handles all exterior upkeep, from brickwork to roofing, so you can focus on enjoying your home, not maintaining it. Perfectly positioned near schools, shopping, and local amenities, with city and private bus options. The Bayside LIRR station is minutes from your door, whisking you to Grand Central or Penn Station in just 22 minutes. Plus, enjoy nearby access to a community pool and library for added leisure. Whether you’re upsizing, downsizing, or just starting out—this is the lifestyle upgrade you’ve been waiting for.

More Property Details

Animals Policy: Yes

Room Information

Bedroom: 3   Full Bath: 1   Half Bath: 1   Other: 1  

Property Features

ConstructionMaterials: Awning(s), Mailbox, Private Entrance, Rain Gutters   Lot Size: 5.8926   Lot Sq Ft: 256682   Approx. Int. Sq. Ft.: 1300.00   Parking Spaces: Yes   Parking Spaces: 1   Parking Facilities: Assigned, Private   Pets: Yes  

Appliances & Utilities

Heat: Baseboard, Natural Gas   A/C: Central Air   Water: Public   Sewer: Public Sewer  

Financial

Taxes: $6,959  

Local Area Information

Block: 5863   Lot: 1095  

Listing Information provided courtesy of LAFFEY REAL ESTATE  516-627-4343
Inquire About This Property

(*) - Required fields

  1. Presented by

    Gold Coast Homes & Estates
    • Gold Coast Homes & Estates
    • Licensed Real Estate Broker
    • (631) 283-1000
    •   Contact Us
OneKey™ MLSThe source of the displayed data is either the property owner or public record provided by non-governmental third parties. It is believed to be reliable but not guaranteed. Information Copyright 2020, OneKey™ MLS
© 2025 Gold Coast Homes & Estates. All rights reserved | Login | DMCA Notice | Search Engine powered by eRealtyMedia.com