Properties 8118 of 20516 results« Previous property   Next property »

44 Finley Avenue, Staten Island, NY, 10306 $849,000

Single Family For Sale 3 Beds , 2 Full Bath , 1440 SqFt 

Property Picture
1 of 30
 
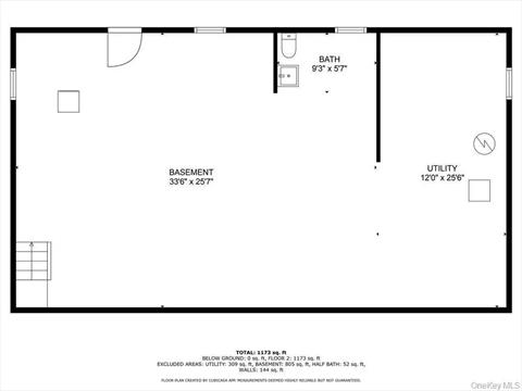
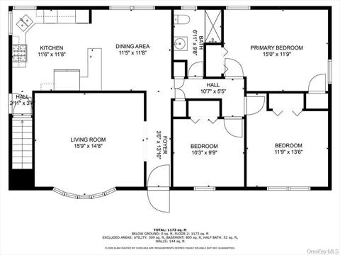
Front of Structure Front of Structure Front of Structure Side of Structure Other Side of Structure Side of Structure Aerial View Aerial View Aerial View Aerial View Aerial View Living Room Kitchen Kitchen Kitchen Dining Area Dining Area Bedroom Bedroom Bedroom Bedroom Bathroom Basement Basement Basement Bathroom Floor Plan Floor Plan Floor Plan
 

Details ML#: 909443  

  • Style: Ranch
  • Year Built: 1955
  • Taxes: $5,866
  • Status:Active

Description

This charming ranch single-family home features 3 bedrooms and 2 bathrooms (with the second bathroom in the basement awaiting your finishing touch). Step inside to find a spacious living room that flows seamlessly into an open kitchen with a dining area, perfect for everyday living and entertaining. The home also includes a full semi-finished basement with interior access and a separate outside entrance, offering flexibility for recreation, storage, or expansion. Outside, you’ll find a private driveway with space for up to 5 cars and a back and side yard ideal for outdoor gatherings or relaxation. With zoning that allows you to build up, this property presents incredible potential for future growth and customization. Don’t miss your chance to own this New Dorp Beach gem!

More Property Details

Room Information

Bedroom: 3   Full Bath: 2  

Property Features

Approx. Int. Sq. Ft.: 1440.00   Parking Spaces: Yes   Parking Spaces: 5  

Appliances & Utilities

Heat: Natural Gas, Other   A/C: Central Air   Water: Other   Sewer: Other  

Financial

Taxes: $5,866  

Local Area Information

School District#: 1   Block: 4064   Lot: 8  

Listing Information provided courtesy of RE/MAX Edge  718-288-3835
Inquire About This Property

(*) - Required fields

  1. Presented by

    Gold Coast Homes & Estates
    • Gold Coast Homes & Estates
    • Licensed Real Estate Broker
    • (631) 283-1000
    •   Contact Us
OneKey™ MLSThe source of the displayed data is either the property owner or public record provided by non-governmental third parties. It is believed to be reliable but not guaranteed. Information Copyright 2020, OneKey™ MLS
© 2025 Gold Coast Homes & Estates. All rights reserved | Login | DMCA Notice | Search Engine powered by eRealtyMedia.com