Properties 834 of 19602 results« Previous property   Next property »

780 Forest Avenue, Larchmont, NY, 10538 $3,199,900

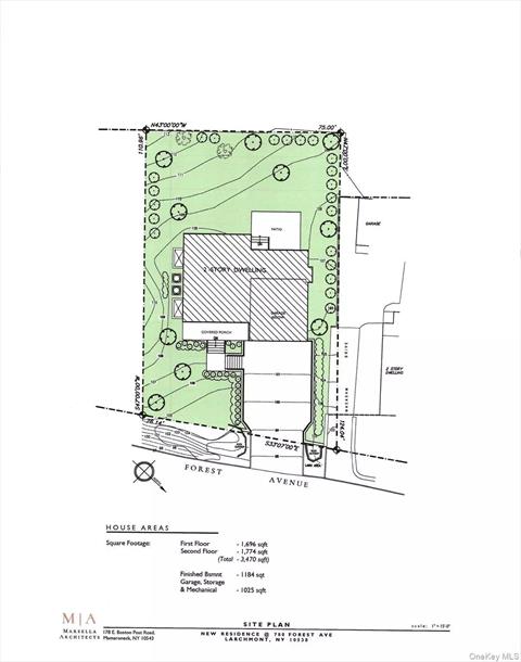
Single Family For Sale 5 Beds , 4 Full Bath , 1 Half Bath , 4654 SqFt 

Property Picture
1 of 6
 
Front of Structure Floor Plan Floor Plan Floor Plan Floor Plan Floor Plan
 

Details ML#: 909963  

  • Style: Colonial
  • Year Built: 2025
  • Taxes: $20,643
  • Status:Active

Description

New Construction colonial home, built by well-know local builder, C & D Marchese Construction. This home has the layout, amenities, superior design and finishes expected in high-end new construction. 5 bedrooms, 4.5 bath. Features include Andersen Windows, White Oak Hardwood Floors, Custom Gourmet kitchen with Commercial Grade Appliances. Stone Countertops, Primary Suite, Pre-wired Audio and Camera systems, 2 Car Garage, backyard and patio for entertaining. Located near Leatherstocking nature trails, Murray Avenue school, close to train, Village and all Larchmont has to offer. Buyer Pays New York State Transfer Tax. Taxes are based on current assesment-new tax assesment once home is complete. This home will be ready for occupancy in December 2025. Rendering for Conceptual Purposes only.

More Property Details

Room Information

Bedroom: 5   Full Bath: 4   Half Bath: 1   Other: 1  

Property Features

ConstructionMaterials: Lighting, Mailbox, Rain Gutters   Lot Size: 0.21   Lot Sq Ft: 9148   Approx. Int. Sq. Ft.: 4654.00   Garage: Yes   Garage: 2.0   Parking Spaces: Yes   Parking Spaces: 2   Parking Facilities: Driveway, Garage  

Appliances & Utilities

Heat: Hydro Air, Natural Gas, Radiant   A/C: Central Air, Zoned   Water: Public   Sewer: Public Sewer  

Financial

Taxes: $20,643  

Local Area Information

School District: Murray Avenue  

Listing Information provided courtesy of Houlihan Lawrence Inc.  914-967-7680
Inquire About This Property

(*) - Required fields

  1. Presented by

    Gold Coast Homes & Estates
    • Gold Coast Homes & Estates
    • Licensed Real Estate Broker
    • (631) 283-1000
    •   Contact Us
OneKey™ MLSThe source of the displayed data is either the property owner or public record provided by non-governmental third parties. It is believed to be reliable but not guaranteed. Information Copyright 2020, OneKey™ MLS
© 2025 Gold Coast Homes & Estates. All rights reserved | Login | DMCA Notice | Search Engine powered by eRealtyMedia.com