Properties 8768 of 19893 results« Previous property   Next property »

240-22 70th Avenue Unit 9B, Little Neck, NY, 11362 $789,000

Condo For Sale 3 Beds , 2 Full Bath , 1055 SqFt 

Property Picture
1 of 32
 
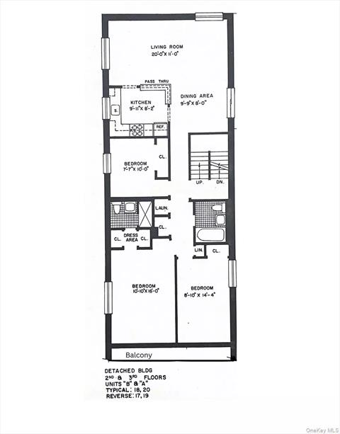
Front of Structure Front of Structure Aerial View Front of Structure Front of Structure Living Room Living Room Living Room Dining Area Living Room Office Kitchen Kitchen Bedroom Bedroom Other Bathroom Bedroom Laundry Bedroom Other Bathroom Storage Other Garage Community Floor Plan Other Garage Garage Community Floor Plan
 

Details ML#: 925711  

  • Year Built: 1984
  • Taxes: $4,931
  • Status:Active

Description

Pristine, Sun-Drenched Corner 3beds Condo in Highly Sought After High Point Condominium of Douglaston. This Apartment is in the 2nd Floor and Features 3 Bedrooms, 2 Full Bathrooms, a Bright and Oversize L-Shaped Living Room-Dining Room with Wall to Wall Windows, Hardwood Floors Throughout Out and Spacious Kitchen. The Master Bedroom Lays an Ensuite Bathroom and Sliding Glass Doors to a Sunny Terrace. Washer And Dryer in Unit. There is a Huge Private Storage Room in the Basement. This Apartment comes with Garage, Driveway and a Assigned Parking Spaces. Pet Friendly. Extremely close to Shops, Alley Pond Park, Douglaston Golf Course, QM5 Express Bus to NYC, Q30 to Flushing, Short Drive to LIRR, Long Island Expressway, Grand Central Parkway and Cross Island Parkway. PS 221 and MS 67 are affiliated with School District 26.

More Property Details

Animals Policy: Yes

Room Information

Bedroom: 3   Full Bath: 2   Other: 1  

Property Features

Lot Size: 2.8742   Lot Sq Ft: 125198   Approx. Int. Sq. Ft.: 1055.00   Garage: Yes   Garage: 1.0   Parking Spaces: Yes   Parking Spaces: 3   Parking Facilities: Assigned, Driveway, Garage   Pets: Yes  

Appliances & Utilities

Heat: Baseboard, Hot Water, Natural Gas   A/C: Wall/Window Unit(s)   Water: Public   Sewer: Public Sewer  

Financial

Taxes: $4,931  

Local Area Information

School District: Ps 221 North Hills School  

Listing Information provided courtesy of Chase Global Realty Corp  718-355-8788
Inquire About This Property

(*) - Required fields

  1. Presented by

    Gold Coast Homes & Estates
    • Gold Coast Homes & Estates
    • Licensed Real Estate Broker
    • (631) 283-1000
    •   Contact Us
OneKey™ MLSThe source of the displayed data is either the property owner or public record provided by non-governmental third parties. It is believed to be reliable but not guaranteed. Information Copyright 2020, OneKey™ MLS
© 2025 Gold Coast Homes & Estates. All rights reserved | Login | DMCA Notice | Search Engine powered by eRealtyMedia.com