Properties 9077 of 19829 results« Previous property   Next property »

93 Shagbark Lane, Hopewell Junction, NY, 12533 $765,000

Single Family For Sale 4 Beds , 2 Full Bath , 1 Half Bath , 2819 SqFt 

Property Picture
1 of 50
 
Front of Structure Front of Structure Front of Structure Aerial View Front of Structure Other Front of Structure Entry Entry Entry Office Dining Area Living Room Living Room Bar Kitchen Dining Area Bedroom Other Entry Other Bedroom Sitting Room Bedroom Bathroom Bathroom Closet Closet Deck Deck Bedroom Bathroom Laundry Bedroom Bedroom Bathroom Bathroom Bedroom Deck Deck Yard Yard Back of Structure Yard Aerial View Aerial View Floor Plan Floor Plan Floor Plan Floor Plan
 

Details ML#: 919925  

  • Style: Colonial
  • Year Built: 2005
  • Taxes: $17,499
  • Status:Active

Description

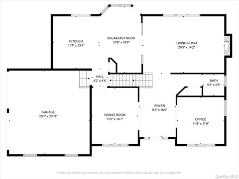
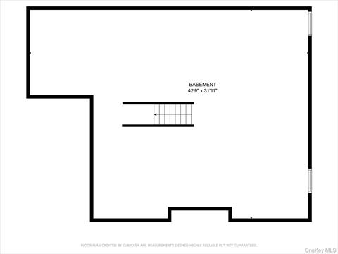
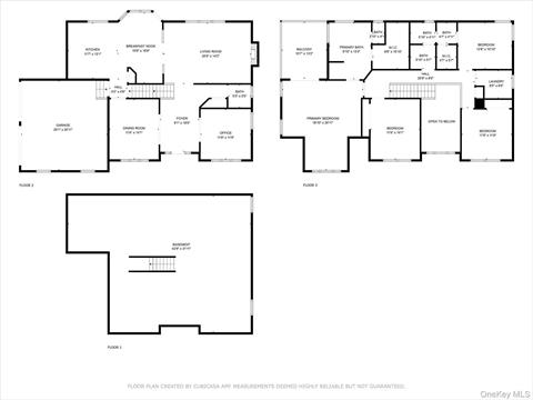
This colonial offers more than 4, 000 sq. ft. of space, including 2, 819 sq. ft. above grade and 1, 363 sq. ft. of high-ceiling basement space ready to be finished. Set on 2.27 acres in the Shagbark subdivision, the property combines privacy with convenience to the Taconic Parkway, shopping, and restaurants. Inside, you’ll find a dramatic two-story foyer with tall windows and a spacious kitchen with cherry cabinetry, granite counters, stainless steel appliances, wine fridge, and a built-in desk area. The breakfast room opens to a deck overlooking the level backyard—ideal for play, entertaining, or a future pool. The primary suite includes a sitting area, private deck, and a bath with dual vanities and whirlpool tub. Upstairs also features three additional bedrooms, a full bath, and laundry. Other details include hardwood and tile floors throughout, multiple French and sliding doors that bring in natural light, spacious walk-in closets, exterior lighting, landscaped grounds, and a level backyard with room for outdoor activities or a pool. The high-ceiling basement provides endless possibilities for additional living space.

More Property Details

Room Information

Bedroom: 4   Full Bath: 2   Half Bath: 1   Other: 1  

Property Features

Lot Size: 2.27   Lot Sq Ft: 98881   Approx. Int. Sq. Ft.: 2819.00   Garage: Yes   Garage: 2.0   Parking Spaces: Yes   Parking Facilities: Attached  

Appliances & Utilities

Heat: Forced Air, Oil   A/C: Central Air   Water: Well   Sewer: Septic Tank  

Financial

Taxes: $17,499  

Local Area Information

School District: Fishkill Plains Elementary School  

Listing Information provided courtesy of Keller Williams Realty Partner  914-962-0007
Inquire About This Property

(*) - Required fields

  1. Presented by

    Gold Coast Homes & Estates
    • Gold Coast Homes & Estates
    • Licensed Real Estate Broker
    • (631) 283-1000
    •   Contact Us
OneKey™ MLSThe source of the displayed data is either the property owner or public record provided by non-governmental third parties. It is believed to be reliable but not guaranteed. Information Copyright 2020, OneKey™ MLS
© 2025 Gold Coast Homes & Estates. All rights reserved | Login | DMCA Notice | Search Engine powered by eRealtyMedia.com