Properties 4 of 12 results« Previous property   Next property »

35 Hoaglands Lane, Old Brookville, NY, 11545 $3,650,000

Single Family For Sale 6 Beds , 6 Full Bath , 1 Half Bath , 4787 SqFt 

Property Picture
1 of 38
 
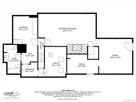
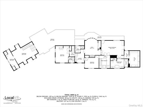
Front of Structure Courtyard Side of Structure Entry Entry Bar Bar Bathroom Living Room Living Room Kitchen Kitchen Kitchen Dining Area Dining Area Sun Room Laundry Other Bathroom Primary Bedroom Primary Bathroom Primary Bathroom Closet Exercise Room Deck Pool Pool Pool Aerial View Aerial View Floor Plan Floor Plan Floor Plan Floor Plan Floor Plan Floor Plan Floor Plan Floor Plan
 

Details ML#: 850663  

  • Style: Colonial
  • Year Built: 1937
  • Taxes: $51,303
  • Status:Active

Description

At the end of a long private driveway the exceedingly charming Georgian Colonial aptly styled “Twin Pines” awaits. Quiet luxury and classic architecture strikes a harmonious balance with resort-style amenities set amongst 2 lush acres, providing an exceptional lifestyle for the discerning buyer. Step inside the entrance to find a foyer with original palazzo tile and library with a wood-burning fireplace and a full Creme de Marfil marble topped bar. An expansive living room with custom built-ins, original millwork, and another wood-burning fireplace leads you into a gourmet kitchen; a Chef’s dream composed of Olympian white honed marble countertops, top-of-the-line appliances, including a Subzero, 6-burner Wolf range, two dishwashers and 2 ovens with a generous center island complete with prep sink for entertaining. Down the hall, you’ll find the first of 3 laundry rooms with additional subzero refrigerator as well as an All-Seasons room with flush doors opening to your outdoor terrace. The sparkling heated salt-water gunite pool with hot tub, surrounded by recently installed Italian marble pavers and shaded by specimen trees is an entertainer’s delight and provides a stunning backdrop for hosting gatherings.The second level accessed by 2 staircases features a bedroom ensuite with custom built-ins, an additional bedroom, bathroom, 2nd laundry room and a primary suite with a custom closet and a sumptuous bathroom with radiant ceramic heated flooring, a double rain head shower, and a free standing soaking tub. A sitting room off the primary suite can be used for an office or a gym and features a double pane bay window along with additional closet space.Between the main level and the basement is a lower level featuring yet another bedroom ensuite with custom built-ins, while the basement features a 3rd fireplace, bathroom, bedroom, additional storage and a 3rd laundry room. A dog run and outdoor workshop with electricity along with a bonus space above a 2-car heated garage are among the endless list of features Twin Pines offers.This stunning estate built in 1937 and nestled in the heart of the highly sought-after neighborhood of Old Brookville, offers unparalleled luxury and tranquility while providing a private oasis just minutes from fine-dining, shopping, equestrian facilities, and clubs of leisure with convenient access to NYC via the LIRR. Located in the award-winning North Shore School District, this is a rare opportunity to own a piece of history on Long Island’s famed Gold Coast.

More Property Details

Room Information

Bedroom: 6   Full Bath: 6   Half Bath: 1  

Property Features

Lot Size: 1.96   Lot Sq Ft: 85378   Approx. Int. Sq. Ft.: 4787.00   Garage: Yes   Garage: 2.0   Existing Structures: InGround Pool   

Appliances & Utilities

Heat: Baseboard, Oil, Radiant Floor   A/C: Central Air   Water: Public   Sewer: Septic Tank  

Financial

Taxes: $51,303  

Local Area Information

School District: Glen Head Elementary School   Block: L   Lot: 1042  

Listing Information provided courtesy of Daniel Gale Sothebys Intl Rlty  516-674-2000
Inquire About This Property

(*) - Required fields

  1. Presented by

    Gold Coast Homes & Estates
    • Gold Coast Homes & Estates
    • Licensed Real Estate Broker
    • (631) 283-1000
    •   Contact Us
OneKey™ MLSThe source of the displayed data is either the property owner or public record provided by non-governmental third parties. It is believed to be reliable but not guaranteed. Information Copyright 2020, OneKey™ MLS
© 2025 Gold Coast Homes & Estates. All rights reserved | Login | DMCA Notice | Search Engine powered by eRealtyMedia.com