Properties 1071 of 19592 results« Previous property   Next property »

1 Renaissance Square Unit PH4CD, White Plains, NY, 10601 $2,850,000

Condo For Sale 4 Beds , 4 Full Bath , 1 Half Bath , 5079 SqFt 

Property Picture
1 of 25
 
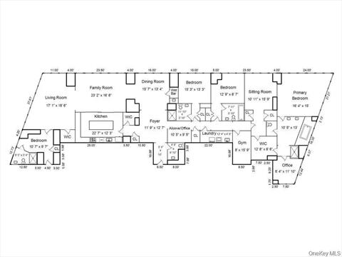
View Family Room Family Room Living Room Living Room Family Room Dining Room Dining Room Kitchen Family Room Living Room Primary Bedroom Primary Bedroom Primary Bedroom Other Other Primary Bathroom Closet Bedroom Bedroom Bedroom Entry Dining Area View Floor Plan
 

Details ML#: 911972  

  • Style: Other
  • Also for Rent:Yes
  • Year Built: 2007
  • Taxes: $47,571
  • Status:Active

Description

Nestled gracefully atop the 39th floor of the illustrious Ritz Carlton Westchester, this penthouse residence defines opulence and sets an unprecedented benchmark for high-rise living and entertainment. As it stands sentinel between the bustling metropolises of Boston and Manhattan, it offers an unparalleled panoramic vista that unfurls like a masterpiece, extending from the glistening waters of the Long Island Sound, embracing the iconic skyline of New York City, and meandering up the majestic Hudson Valley, while casting its gaze upon the picturesque landscapes of Connecticut and the grandeur of the New Jersey Palisades. Every inch of this luxurious penthouse has been meticulously designed and custom-tailored to an exquisite degree that defies comparison. From the moment you step into the grandeur of the marble entryway, where wood-paneled walls greet you with a timeless elegance, you are transported to a world of unparalleled sophistication. 5079 square feet of luxury features soaring ceilings with 4 bedrooms, 5 bathrooms, a sitting room, an office, an exercise room, a laundry room and so much more. The grand entry and dining room captivate all who enter. The sleek gourmet kitchen, adorned with white marble counters and an oversized center island, is a culinary masterpiece where culinary dreams are brought to life with Viking stainless appliances throughout. Living room and family room boast views of the Long Island Sound, NYC skyline, evening sunsets and more. As you explore further, the five-star primary bedroom suite beckons, promising resplendent comfort and indulgence. Each room within this palatial abode is an epitome of design perfection, a harmonious blend of form and function that transcends the ordinary. Unobtrusive architectural lighting has been thoughtfully integrated to complement the far-reaching views, amplifying the allure of breathtaking sunsets that paint the sky with an artist’s touch. Luxurious finishes grace every nook and cranny, testaments to the unwavering commitment to craftsmanship and elegance. Residents of this penthouse enjoy the unparalleled services of the Ritz Carlton, with a full complement of hotel concierge services at their fingertips, along with access to a pristine pool, and a state-of-the-art gym that caters to every fitness desire. Furthermore, vibrant restaurants and upscale shopping destinations are mere steps away, weaving a tapestry of convenience and luxury right into the very fabric of this exclusive compound. In sum, this penthouse is not merely a residence; it is an epitome of living art, a harmonious fusion of architectural grandeur, peerless design, and unadulterated luxury. It stands as a testament to the heights that high-rise living can attain, setting a new standard for those fortunate enough to call it home.

More Property Details

Animals Policy: Breed Restrictions

Room Information

Bedroom: 4   Full Bath: 4   Half Bath: 1  

Property Features

Approx. Int. Sq. Ft.: 5079.00   Garage: Yes   Garage: 1.0   Parking Spaces: Yes   Parking Facilities: Assigned, Garage, Private   Stories: 44  

Appliances & Utilities

Heat: Hydro Air, Natural Gas   A/C: Central Air   Water: Public   Sewer: Public Sewer  

Financial

Taxes: $47,571  

Local Area Information

School District#: 55   School District: White Plains  

Listing Information provided courtesy of Compass Greater NY, LLC  914-341-1561
Inquire About This Property

(*) - Required fields

  1. Presented by

    Gold Coast Homes & Estates
    • Gold Coast Homes & Estates
    • Licensed Real Estate Broker
    • (631) 283-1000
    •   Contact Us
OneKey™ MLSThe source of the displayed data is either the property owner or public record provided by non-governmental third parties. It is believed to be reliable but not guaranteed. Information Copyright 2020, OneKey™ MLS
© 2025 Gold Coast Homes & Estates. All rights reserved | Login | DMCA Notice | Search Engine powered by eRealtyMedia.com