Properties 10730 of 19797 results« Previous property   Next property »

187 Botsford Street, Hempstead, NY, 11550 $675,000

Single Family For Sale 4 Beds , 3 Full Bath , 1008 SqFt 

Property Picture
1 of 32
 
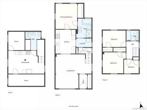
Front of Structure Front of Structure Side of Structure Garage Back of Structure Yard Other Living Room Living Room Entry Other Kitchen Kitchen Kitchen Bedroom Bedroom Bathroom Bathroom Laundry Entry Bathroom Bonus Room Bonus Room Bonus Room Other Bathroom Basement Other Floor Plan Floor Plan Floor Plan Floor Plan
 

Details ML#: 918170  

  • Style: Colonial
  • Year Built: 1929
  • Taxes: $10,365
  • Status:Active

Description

It’s my pleasure to share details about a unique Colonial-style home in Hempstead, located within the Uniondale School District, that is now fully available !This property features four bedrooms and three full bathrooms. It includes a 1.5-car detached garage and has been newly renovated within the last five years. The first floor boasts a king-size bedroom with an en-suite bathroom that includes both a soaking tub and a shower. On the second floor, there are three additional bedrooms and another full bathroom. The home also offers a full, finished basement with a full bathroom and a kitchenette, complete with an outside separate entrance.Comforts include gas heating, a separate hot water heater, and central air conditioning. The property sits on a 5, 000 sq ft lot and is conveniently located just minutes from the Southern State Parkway and approximately one mile from Molloy University.This is a fantastic opportunity to own a truly special home.

More Property Details

Room Information

Bedroom: 4   Full Bath: 3   Other: 2  

Property Features

Lot Size: 0.1148   Lot Sq Ft: 5000   Approx. Int. Sq. Ft.: 1008.00   Garage: Yes   Garage: 1.5   Parking Spaces: Yes   Parking Facilities: Driveway  

Appliances & Utilities

Heat: Hot Air, Natural Gas   A/C: Central Air   Water: Public   Sewer: Public Sewer  

Financial

Taxes: $10,365  

Local Area Information

School District: Grand Avenue Elementary School  

Listing Information provided courtesy of NextHome Revere  516-597-5800
Inquire About This Property

(*) - Required fields

  1. Presented by

    Gold Coast Homes & Estates
    • Gold Coast Homes & Estates
    • Licensed Real Estate Broker
    • (631) 283-1000
    •   Contact Us
OneKey™ MLSThe source of the displayed data is either the property owner or public record provided by non-governmental third parties. It is believed to be reliable but not guaranteed. Information Copyright 2020, OneKey™ MLS
© 2025 Gold Coast Homes & Estates. All rights reserved | Login | DMCA Notice | Search Engine powered by eRealtyMedia.com