Properties 11150 of 19592 results« Previous property   Next property »

906 Ardmore Place, Bellmore, NY, 11710 $649,000

Single Family For Sale 2 Beds , 1 Full Bath , 1 Half Bath , 997 SqFt 

Property Picture
1 of 24
 
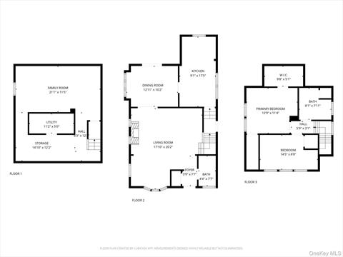
Front of Structure Living Room Dining Area Dining Area Living Room Bathroom Bedroom Bathroom Primary Bedroom Kitchen Kitchen Kitchen Basement Laundry Basement Yard Yard Back of Structure Front of Structure Yard Basement Floor Plan Floor Plan Floor Plan
 

Details ML#: 918240  

  • Style: Cape Cod
  • Year Built: 1926
  • Taxes: $10,660
  • Status:Active

Description

Welcome to 906 Ardmore Place – a well-maintained home on a quiet, tree-lined street in the heart of Bellmore. Offering the perfect blend of comfort and convenience, this home features a bright, open-concept living and dining area ideal for both everyday living and entertaining.The main floor includes a spacious living room, kitchen with stainless steel appliances, gas range, and custom cabinetry, dining area, hall closet, full bath, and slider doors that open to the backyard. Upstairs, you’ll find two comfortable bedrooms and a second full bathroom.Hardwood floors run throughout, and natural light fills the home. The basement offers added convenience for storage or additional usable space, along with laundry.Step outside to an expansive backyard with a large patio – perfect for outdoor gatherings or relaxing evenings. Located close to parkways, restaurants, shopping, the LIRR, and other public transportation, this move-in ready home truly checks all the boxes.

More Property Details

Room Information

Bedroom: 2   Full Bath: 1   Half Bath: 1   Other: 1  

Property Features

Lot Size: 0.1291   Lot Sq Ft: 5625   Approx. Int. Sq. Ft.: 997.00   Parking Spaces: Yes   Parking Spaces: 2   Parking Facilities: Driveway  

Appliances & Utilities

Heat: Forced Air   A/C: Wall/Window Unit(s)   Water: Public   Sewer: Public Sewer  

Financial

Taxes: $10,660  

Local Area Information

School District: Reinhard Early Childhood Center  

Listing Information provided courtesy of Douglas Elliman Real Estate  516-432-3400
Inquire About This Property

(*) - Required fields

  1. Presented by

    Gold Coast Homes & Estates
    • Gold Coast Homes & Estates
    • Licensed Real Estate Broker
    • (631) 283-1000
    •   Contact Us
OneKey™ MLSThe source of the displayed data is either the property owner or public record provided by non-governmental third parties. It is believed to be reliable but not guaranteed. Information Copyright 2020, OneKey™ MLS
© 2025 Gold Coast Homes & Estates. All rights reserved | Login | DMCA Notice | Search Engine powered by eRealtyMedia.com