Properties 11788 of 19518 results« Previous property   Next property »

28 Tuscala Street, Selden, NY, 11784 $599,999

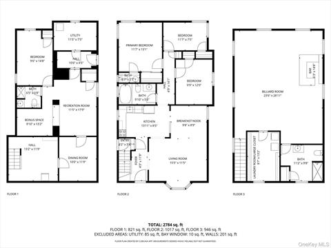
Single Family For Sale 4 Beds , 2 Full Bath , 1 Half Bath , 2166 SqFt 

Property Picture
1 of 41
 
Front of Structure Front of Structure Front of Structure Living Room Living Room Living Room Living Room Dining Area Dining Area Dining Area Kitchen Kitchen Kitchen Other Bedroom Bedroom Bathroom Bedroom Bedroom Bathroom Bathroom Game Room Game Room Living Room Living Room Laundry Other Other Other Other Bathroom Entry Yard Yard Yard Yard Yard Floor Plan Floor Plan Floor Plan Floor Plan
 

Details ML#: 919683  

  • Style: Exp Ranch
  • Year Built: 1973
  • Taxes: $12,208
  • Status:Active

Description

Beautiful & Versatile Home on a Private Dead-End Block This spacious and well-maintained home offers 3/4 bedrooms and 3.5 baths. There is a tremendous space on the second floor that could easily serve as a HUGE primary suite , perfect as a private owners retreat or even a second living area. With all this space and 3 full baths plus 1 half bath, there’s room for everyone to live and entertain comfortably.The inviting main level features wood floors and a wonderful flow throughout. Set on .56 acres of private, flat yard space, the property provides plenty of room for outdoor enjoyment, play, or future enhancements.The basement is a standout—with an outside entrance, 2 egress windows, a full bath, and finished rooms, it offers incredible versatility for extended living space, recreation, or guests.Located on a peaceful dead-end block, this home is the perfect blend of comfort, functionality, and opportunity.

More Property Details

Room Information

Bedroom: 4   Full Bath: 2   Half Bath: 1  

Property Features

Lot Size: 0.56   Lot Sq Ft: 24394   Approx. Int. Sq. Ft.: 2166.00   Garage: Yes   Garage: 1.0   Parking Spaces: Yes   Parking Facilities: Driveway, Garage  

Appliances & Utilities

Heat: Baseboard   A/C: None   Water: Public   Sewer: Cesspool  

Financial

Taxes: $12,208  

Local Area Information

School District: New Lane Memorial Elementary School  

Listing Information provided courtesy of Douglas Elliman Real Estate  631-758-2552
Inquire About This Property

(*) - Required fields

  1. Presented by

    Gold Coast Homes & Estates
    • Gold Coast Homes & Estates
    • Licensed Real Estate Broker
    • (631) 283-1000
    •   Contact Us
OneKey™ MLSThe source of the displayed data is either the property owner or public record provided by non-governmental third parties. It is believed to be reliable but not guaranteed. Information Copyright 2020, OneKey™ MLS
© 2025 Gold Coast Homes & Estates. All rights reserved | Login | DMCA Notice | Search Engine powered by eRealtyMedia.com