Properties 12807 of 19797 results« Previous property   Next property »

161 West 133rd Street, New York (Manhattan), NY, 10030 $550,000

Condo For Sale 2 Beds , 1 Full Bath , 887 SqFt 

Property Picture
1 of 17
 
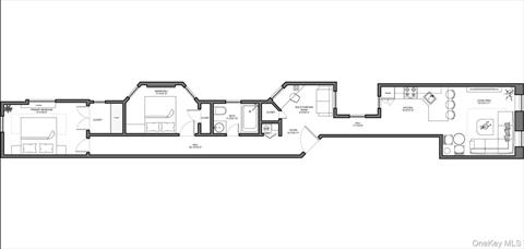
Living Room Kitchen Front of Structure Bathroom Other Community Aerial View Kitchen Living Room Living Room Bedroom Floor Plan Kitchen Living Room Living Room Bedroom Other
 

Details ML#: 866774  

  • Year Built: 1910
  • Taxes: $8,400
  • Status:Active

Description

161 West 133rd Street provides a rare opportunity to own a two bedroom home embodied with circa 1910 architecture and twelve windows.Its layout provides a south facing living room, windowed kitchen, windowed bathroom, additional office space, an east view second bedroom and a north view primary bedroom. This home includes a washer/dryer, dishwasher, granite countertops and hardwood floors. The primary bedroom can host as large as a king size bed. Nestled next to a Community Garden and conveniently located between the 2/3 Express and B/C trains, this is a perfect opportunity for anyone seeking to own their very first two bedroom home.Trader Joes, Whole Foods and Target are six blocks from this home. St. Nicholas Park and Marcus Garvey Park are also nearby. We’re just two flights up and look forward to seeing you soon.

More Property Details

Animals Policy: Cats OK, Dogs OK, No Restrictions

Room Information

Bedroom: 2   Full Bath: 1   Other: 2  

Property Features

Approx. Int. Sq. Ft.: 887.00  

Appliances & Utilities

Heat: Baseboard   A/C: Wall/Window Unit(s)   Water: Public   Sewer: Public Sewer  

Financial

Taxes: $8,400  

Listing Information provided courtesy of Real Broker NY LLC  855-450-0442
Inquire About This Property

(*) - Required fields

  1. Presented by

    Gold Coast Homes & Estates
    • Gold Coast Homes & Estates
    • Licensed Real Estate Broker
    • (631) 283-1000
    •   Contact Us
OneKey™ MLSThe source of the displayed data is either the property owner or public record provided by non-governmental third parties. It is believed to be reliable but not guaranteed. Information Copyright 2020, OneKey™ MLS
© 2025 Gold Coast Homes & Estates. All rights reserved | Login | DMCA Notice | Search Engine powered by eRealtyMedia.com