Properties 13068 of 18707 results« Previous property   Next property »

32-22 92 Street Unit 603, East Elmhurst, NY, 11369 $489,000

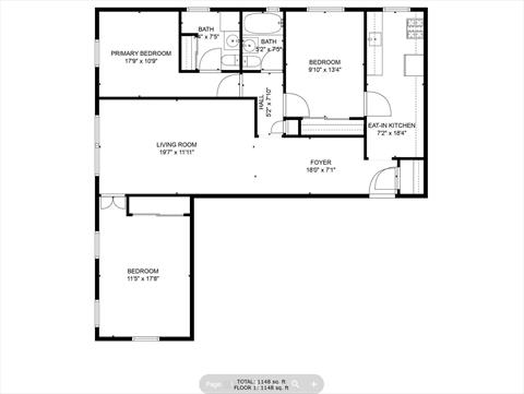
Coop For Sale 3 Beds , 1 Full Bath , 1 Half Bath , 1150 SqFt 

Property Picture
1 of 25
 
Front of Structure Front of Structure Other Other Other Living Room Living Room Living Room Living Room Dining Area Dining Area Kitchen Kitchen Kitchen Bedroom Bedroom Bedroom Bedroom Bathroom Bedroom Bathroom Other Laundry Bedroom Floor Plan
 

Details ML#: 836897  

  • Style: Other
  • Year Built: 1952
  • Status:Active

Description

A needle in a haystack--- Extremely spacious and bright, 3 Bedroom, 2 bath coop (the primary bedroom has an attached bath) in centrally located east Elmhurst, 1, 150 square feet of living space, close to all major transportation, public transit, and roadways.

More Property Details

Animals Policy: Yes

Room Information

Bedroom: 3   Full Bath: 1   Half Bath: 1   Other: 1  

Property Features

Approx. Int. Sq. Ft.: 1150.00   Parking Spaces: Yes   Parking Facilities: On Street   Stories: 6   Pets: Yes  

Appliances & Utilities

Heat: Oil   A/C: Wall/Window Unit(s)   Water: Public   Sewer: Public Sewer  

Local Area Information

School District#: 1  

Listing Information provided courtesy of North Star Homes Inc  thenorthstarteam@gmail.com
Inquire About This Property

(*) - Required fields

  1. Presented by

    Gold Coast Homes & Estates
    • Gold Coast Homes & Estates
    • Licensed Real Estate Broker
    • (631) 283-1000
    •   Contact Us
OneKey™ MLSThe source of the displayed data is either the property owner or public record provided by non-governmental third parties. It is believed to be reliable but not guaranteed. Information Copyright 2020, OneKey™ MLS
© 2025 Gold Coast Homes & Estates. All rights reserved | Login | DMCA Notice | Search Engine powered by eRealtyMedia.com