Properties 13282 of 19567 results« Previous property   Next property »

1333 Inwood Avenue, Bronx, NY, 10452 $499,900

Misc For Sale  

Property Picture
1 of 7
 
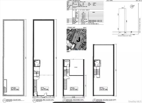
Fence Community Other Other Other Floor Plan Floor Plan
 

Details ML#: 922921  

  • Business Type: Multi-Family
  • Taxes: $11,176
  • Status:Active

Description

Just blocks from Yankee Stadium, this site is at the heart of a rapidly transforming neighborhood, soon surrounded by hundreds of newly built residential apartments. The influx of residents creates strong demand for commercial services and amenities.Existing structure: Two-family dwelling slated for demolitionZoning: M1-2 (Light Manufacturing) with a FAR: 2.0 (Commercial) and up to 4.8 for Community Facility (with parking requirements)Development Potential: Preliminary plans underway for a 3-story commercial building with an estimated total area: -4, 385 SFPossible to get a variance to build residential multifamily. Ideal for retail, medical, office, or mixed-use community facilityStrong need for retail, services and community infrastructure.

More Property Details

Property Features

Lot Size: 0.0502   Lot Sq Ft: 2187  

Appliances & Utilities

Sewer: Public Sewer  

Financial

Taxes: $11,176  

Local Area Information

School District: Lucero Elementary School  

Listing Information provided courtesy of Liberty Chateau Realty Inc  347-542-3913
Inquire About This Property

(*) - Required fields

  1. Presented by

    Gold Coast Homes & Estates
    • Gold Coast Homes & Estates
    • Licensed Real Estate Broker
    • (631) 283-1000
    •   Contact Us
OneKey™ MLSThe source of the displayed data is either the property owner or public record provided by non-governmental third parties. It is believed to be reliable but not guaranteed. Information Copyright 2020, OneKey™ MLS
© 2025 Gold Coast Homes & Estates. All rights reserved | Login | DMCA Notice | Search Engine powered by eRealtyMedia.com