Properties 13575 of 19567 results« Previous property   Next property »

10 Rock Cliff Place, White Plains, NY, 10603 $488,888

Misc For Sale  

Property Picture
1 of 6
 
Other Other Other Other Other Floor Plan
 

Details ML#: 814892  

  • Business Type: Commercial
  • Taxes: $3,498
  • Status:Active

Description

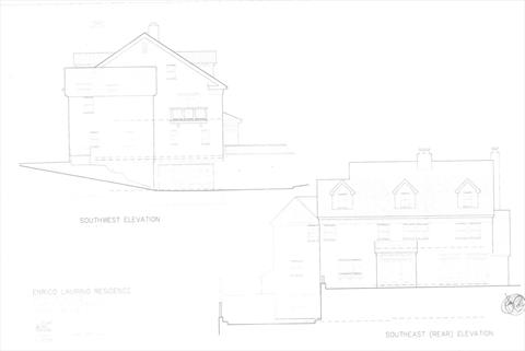
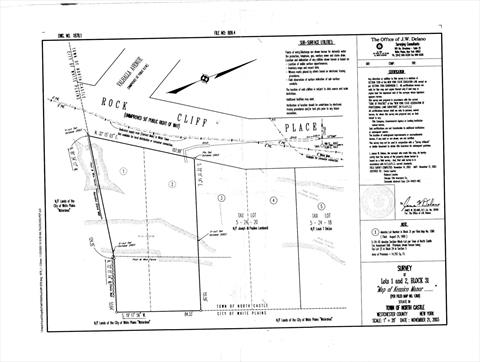
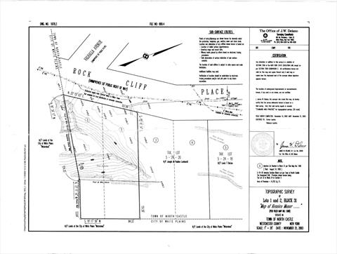
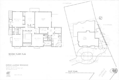
Build Your Dream Home at 10 Rock Cliff Place – North Castle, WestchesterA rare and exciting opportunity awaits at 10 Rock Cliff Place! Nestled in the desirable North Castle community, this approved building lot offers 1/3 of an acre of prime real estate, ready for your vision to come to life. With approved plans already in place, much of the heavy lifting has been done—allowing you to focus on creating your custom dream home in one of Westchester’s most sought-after areas.This picturesque property boasts: • A serene setting on a quiet cul-de-sac. • Convenient access to nearby parks, schools, shops, and restaurants. • A commuter-friendly location, close to major highways and public transportation options.Surrounded by natural beauty and offering the charm of small-town living with all the amenities of modern convenience, 10 Rock Cliff Place is perfect for those seeking a balance between tranquility and accessibility.Don’t miss this chance to turn your dream home into a reality! Contact us today for more information about this exceptional property.

More Property Details

Property Features

Lot Size: 0.33   Lot Sq Ft: 14375  

Appliances & Utilities

Sewer: Public Sewer  

Financial

Taxes: $3,498  

Local Area Information

School District#: 1  

Listing Information provided courtesy of YourHomeSold Guaranteed Realty  718-324-6060
Inquire About This Property

(*) - Required fields

  1. Presented by

    Gold Coast Homes & Estates
    • Gold Coast Homes & Estates
    • Licensed Real Estate Broker
    • (631) 283-1000
    •   Contact Us
OneKey™ MLSThe source of the displayed data is either the property owner or public record provided by non-governmental third parties. It is believed to be reliable but not guaranteed. Information Copyright 2020, OneKey™ MLS
© 2025 Gold Coast Homes & Estates. All rights reserved | Login | DMCA Notice | Search Engine powered by eRealtyMedia.com