Properties 14462 of 18720 results« Previous property   Next property »

100 Academy Avenue, Middletown, NY, 10940 $385,000

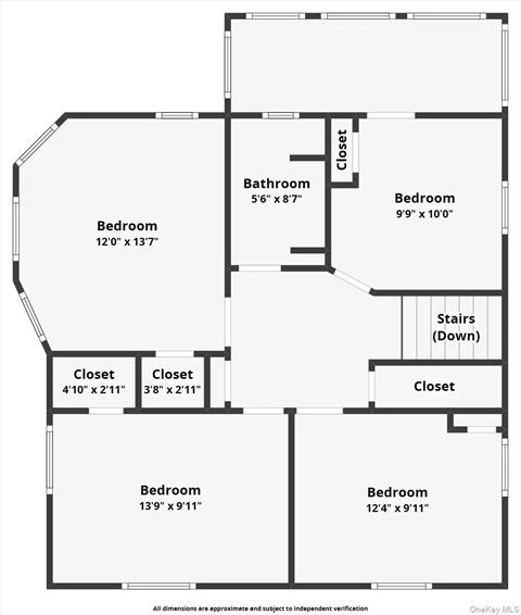
Single Family For Sale 4 Beds , 2 Full Bath , 1634 SqFt 

Property Picture
1 of 44
 
Entry Entry Dining Room Dining Room Dining Room Living Room Bathroom Other Kitchen Kitchen Kitchen Bedroom Bedroom Bedroom Bedroom Bedroom Bedroom Bathroom Bedroom Bedroom Sun Room Office Attic Other Basement Basement Entry Front of Structure Side of Structure Entry Entry Patio Patio Front of Structure Front of Structure Side of Structure Side of Structure Floor Plan Floor Plan Floor Plan Yard Floor Plan Floor Plan Floor Plan
 

Details ML#: 891806  

  • Style: Contemporary
  • Year Built: 1900
  • Taxes: $6,849
  • Status:Active

Description

WELCOME HOME!!! A lovely and spacious single family property, with an extra large backyard, located in the center of Middletown is looking for its new owners, ready to move in!!!The house features a total of 4 bedrooms, 2 full baths, plus a office room, with a semi finished basement for laundry and storage. New SS washer dryer included! The 1st floor consists of a nice kitchen with granite countertops and new SS appliances, big entry foyer, dining room, living room and a full bath. The 2nd floor consist 4 spacious bedrooms, full bath and office room. Additional storage space in the attic. This home is full of charm, with original woodwork and hardwood floor throughout both floors! A brick fireplace with stained window glass in the living room and much more!!Multiple parking in the back through a shared driveway. Plus additional land in the back for entertainment. Great commuter location in the center of Middletown, close to schools, shopping, highways and so on.Won’t last! Schedule your showing today!!! Seller is a licensed real estate agent.

More Property Details

Room Information

Bedroom: 4   Full Bath: 2   Other: 3  

Property Features

Lot Size: 0.2356   Lot Sq Ft: 10261   Approx. Int. Sq. Ft.: 1634.00   Parking Spaces: Yes   Parking Spaces: 4  

Appliances & Utilities

Heat: Baseboard, Ducts, Forced Air, Natural Gas   A/C: Wall/Window Unit(s)   Water: Public   Sewer: Public Sewer  

Financial

Taxes: $6,849  

Local Area Information

School District: Presidential Park Elementary  

Listing Information provided courtesy of eXp Realty  888-276-0630
Inquire About This Property

(*) - Required fields

  1. Presented by

    Gold Coast Homes & Estates
    • Gold Coast Homes & Estates
    • Licensed Real Estate Broker
    • (631) 283-1000
    •   Contact Us
OneKey™ MLSThe source of the displayed data is either the property owner or public record provided by non-governmental third parties. It is believed to be reliable but not guaranteed. Information Copyright 2020, OneKey™ MLS
© 2025 Gold Coast Homes & Estates. All rights reserved | Login | DMCA Notice | Search Engine powered by eRealtyMedia.com