Properties 14820 of 18594 results« Previous property   Next property »

34 Overlook Rd, Woodbourne, NY, 12788 $350,000

Single Family For Sale 3 Beds , 2 Full Bath , 2080 SqFt 

Property Picture
1 of 35
 
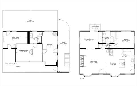
Front of Structure Front of Structure Front of Structure Side of Structure Back of Structure Deck View Patio Living Room Living Room Living Room Dining Area Kitchen Kitchen Dining Area Kitchen Living Room Primary Bedroom Deck Primary Bedroom Bedroom Bedroom Bathroom Bathroom Bathroom Recreation Room Recreation Room Bedroom Bedroom Bedroom Fireplace Bedroom Guest Quarters Bathroom Floor Plan
 

Details ML#: 866165  

  • Style: Raised Ranch
  • Year Built: 1950
  • Taxes: $2,430
  • Status:Active

Description

Lake View Hideaway-Introducing 34 Overlook Road, a renovated and charming house overlooking Lake Paradise. The house is set back off the road and situated amongst the trees which provides privacy and a tranquil ambiance. The wide plank barnwood flooring, wood-burning fireplace, and sliding barn doors all contribute to the laid-back farmhouse vibe. The house is currently a successful year-round Airbnb. This is a great opportunity to purchase a lovely full-time home, vacation house, or short-term rental within the bounds of beautiful Catskill Park. Although it feels like a world away, it’s under two hours from NYC.The house is in move-in condition, with recent upgrades including a new roof, renovated bathrooms, and a re-sealed deck. The main level features a spacious living room accentuated by a floor-to-ceiling brick fireplace. The dining area is large enough to fit a table for 10+. The large chef’s kitchen offers butcherblock countertops, stainless-steel appliances, an island with a breakfast bar, farmhouse sink, and a delightful splash of color with blue cabinets and a pantry. The primary bedroom is very spacious and has sliding barn doors that lead into the living room. It also has a balcony with lake and mountain views. There is one more bedroom on this level, as well as a large and fully tiled bathroom with a bathtub.The lower level is mostly finished and can be accessed by a spiral staircase on the interior or through multiple doors from the deck. At the bottom of the staircase is a recreation room which is currently set up with two beds but can be used as a family room or game room. There is a large bedroom with a stylish bed nook, a door to the side deck, and a sitting area with a pellet stove. An additional guest room provides even more flexible space and has access to the back deck, as well as a utility room with laundry and storage. A second full bathroom is located between the three rooms.The exterior grounds provide ample space for enjoyable outdoor recreation. Relax and entertain on the oversized, wraparound deck while enjoying views of the mountains and lake. Kick back on a hammock, throw some steaks on the grill, or catch some rays of sun through the trees, all while breathing in the clean mountain air. Enjoy some quality time with family and friends around the firepit and make memories that will last a lifetime.Perched in the serene hills of Neversink above Lake Paradise, this house is the perfect getaway from the hustle & bustle of city life. Both the Neversink & Rondout Reservoirs are nearby, offering excellent fishing, boating and bird watching. Nature abounds in the nearby Willowemoc Wild Forest, Sundown Wild Forest, Peekamoose Blue Hole, Little Beaver Kill & Willowemoc Creek. The Neversink Deli & General Store is 5 minutes away, offering a delicious menu and convenient shopping.The house can be sold fully furnished, for a truly turn-key, Airbnb ready, sale. Come see it today!

More Property Details

Room Information

Bedroom: 3   Full Bath: 2   Other: 3  

Property Features

ConstructionMaterials: Fire Pit, Rain Gutters   Lot Size: 0.37   Approx. Int. Sq. Ft.: 2080.00   Parking Spaces: Yes   Parking Facilities: Driveway   Deck: Yes   Porch Description: Yes  

Appliances & Utilities

Heat: Forced Air, Propane   A/C: None   Water: Well   Sewer: Septic Tank  

Financial

Taxes: $2,430  

Local Area Information

School District: Tri-Valley Elementary School  

Listing Information provided courtesy of Catskills Home Services  845-397-7768
Inquire About This Property

(*) - Required fields

  1. Presented by

    Gold Coast Homes & Estates
    • Gold Coast Homes & Estates
    • Licensed Real Estate Broker
    • (631) 283-1000
    •   Contact Us
OneKey™ MLSThe source of the displayed data is either the property owner or public record provided by non-governmental third parties. It is believed to be reliable but not guaranteed. Information Copyright 2020, OneKey™ MLS
© 2025 Gold Coast Homes & Estates. All rights reserved | Login | DMCA Notice | Search Engine powered by eRealtyMedia.com