Properties 14843 of 18898 results« Previous property   Next property »

4 Field End Lane Unit 2R, Eastchester, NY, 10709 $365,000

Coop For Sale 1 Beds , 1 Full Bath , 875 SqFt 

Property Picture
1 of 22
 
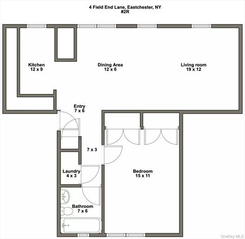
Front of Structure Other Other Living Room Living Room Living Room Dining Area Other Dining Area Kitchen Kitchen Bedroom Bedroom Bedroom Bathroom Community Other Community Other View Community Floor Plan
 

Details ML#: 929325  

  • Style: Garden
  • Year Built: 1940
  • Status:Active

Description

Don’t miss this opportunity! Discover this spacious, open-concept one-bedroom co-op in the highly sought-after Interlaken Gardens community. Perfectly situated on a quiet cul-de-sac with ample parking, this second-floor walk-up unit is bright and beautifully updated. Enjoy a modern kitchen with granite countertops, a breakfast peninsula, stainless steel appliances, updated flooring, and a refreshed bathroom. Generously sized rooms and abundant closet space provide comfort and functionality, while in-unit laundry adds everyday convenience. Residents enjoy private beach rights and are just a short walk from the scenic lake. Enjoy, fishing, kayaking , canoeing and more! Monthly maintenance includes all utilities—heat, hot water, gas, and electricity. This home is conveniently located near dining, Leewood golf club, twin Lakes Farms, Lake Isle country club and 5 minutes to Crestwood Metro North for easy transportation to NYC . Close to shops, parks, schools, highways and more! stainless steel Refrigerator is brand new. Washer, dryer and A/C unit is only one year old. Schedule your private showing today—this gem won’t last long!

More Property Details

Animals Policy: No

Room Information

Bedroom: 1   Full Bath: 1   Other: 1  

Property Features

Lot Size: 0.31   Lot Sq Ft: 13504   Approx. Int. Sq. Ft.: 875.00   Parking Spaces: Yes   Parking Facilities: Off Street, Waitlist   Stories: 2  

Appliances & Utilities

Washer: Yes   Dryer: Yes   Dishwasher: Yes   Stoves: Yes   Heat: Hot Water, Natural Gas   A/C: Wall/Window Unit(s)   Water: Public   Sewer: Public Sewer  

Local Area Information

School District#: 78   School District: anne hutchinson  

Listing Information provided courtesy of United RE Hudson Valley Edge  845-204-6939
Inquire About This Property

(*) - Required fields

  1. Presented by

    Gold Coast Homes & Estates
    • Gold Coast Homes & Estates
    • Licensed Real Estate Broker
    • (631) 283-1000
    •   Contact Us
OneKey™ MLSThe source of the displayed data is either the property owner or public record provided by non-governmental third parties. It is believed to be reliable but not guaranteed. Information Copyright 2020, OneKey™ MLS
© 2025 Gold Coast Homes & Estates. All rights reserved | Login | DMCA Notice | Search Engine powered by eRealtyMedia.com