Properties 17980 of 19518 results« Previous property   Next property »

11 Willow Court, Manorville, NY, 11949 $219,000

Condo For Sale 2 Beds , 2 Full Bath , 1184 SqFt 

Property Picture
1 of 10
 
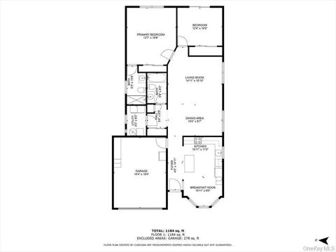
Front of Structure Community Game Room Game Room Pool Other Community Kitchen Gym Floor Plan
 

Details ML#: 920678  

  • Style: Other
  • Year Built: 1999
  • Taxes: $2,229
  • Status:Active

Description

Come see this 2 bedroom , 2 full bath home located in Greenwood Village. Greenwood Village is a 55 Plus active gated community.This home is located in a cul de sac . Upon entering you are greeted by a spacious eat in kitchen . The open floor plan allows for a large living room and a dining area. The primary bedroom has vaulted ceilings , an ensuite & lots of natural light. The guest bedroom leads to a Four Seasons sunroom. In addition to the sunroom is a separate patio , perfect for BBQing. One of the most desirable models in Greenwood Village complete with Central air and Natural gas. Call today for your private viewing . Approval required. Cash only

More Property Details

Animals Policy: Yes

Room Information

Bedroom: 2   Full Bath: 2   Other: 1  

Property Features

Lot Size: 0.0827   Lot Sq Ft: 3602   Approx. Int. Sq. Ft.: 1184.00   Garage: Yes   Garage: 1.0   Parking Spaces: Yes   Parking Spaces: 2   Parking Facilities: Driveway, Garage   Porch Description: Yes   Pets: Yes  

Appliances & Utilities

Heat: Natural Gas   A/C: Central Air   Water: Public   Sewer: Shared  

Financial

Taxes: $2,229  

Local Area Information

School District: Dayton Avenue School  

Listing Information provided courtesy of Signature Premier Properties  631-728-1900
Inquire About This Property

(*) - Required fields

  1. Presented by

    Gold Coast Homes & Estates
    • Gold Coast Homes & Estates
    • Licensed Real Estate Broker
    • (631) 283-1000
    •   Contact Us
OneKey™ MLSThe source of the displayed data is either the property owner or public record provided by non-governmental third parties. It is believed to be reliable but not guaranteed. Information Copyright 2020, OneKey™ MLS
© 2025 Gold Coast Homes & Estates. All rights reserved | Login | DMCA Notice | Search Engine powered by eRealtyMedia.com