Properties 1969 of 18594 results« Previous property   Next property »

19 Bay Woods Drive, Hampton Bays, NY, 11946 $1,899,000

Single Family For Sale 3 Beds , 4 Full Bath , 1 Half Bath , 3602 SqFt 

Property Picture
1 of 50
 
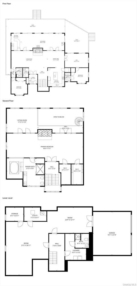
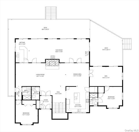
Front of Structure Front of Structure Front of Structure Front of Structure Entry Entry Other Living Room Living Room Dining Area Dining Area Sun Room Living Room Living Room Sun Room Other Other Kitchen Kitchen Kitchen Kitchen Living Room Office Bedroom Bathroom Bathroom Other Other Aerial View Aerial View Aerial View Aerial View Aerial View Aerial View Aerial View Aerial View Aerial View Aerial View Aerial View Aerial View Aerial View Pool Pool Back of Structure Back of Structure Aerial View Floor Plan Floor Plan Floor Plan Floor Plan
 

Details ML#: 933325  

  • Style: Modern
  • Year Built: 2002
  • Taxes: $15,922
  • Status:Active

Upcoming Open House:

Date:  11/15/2025 - 11/15/2025 12:00 PM - 02:00 PM
Address:  19 Bay Woods Drive, Hampton Bays, NY, 11946

Open House Note: 

Description

Dream Home Awaits in Bay Woods, Hampton Bays!### **Property Overview:**Step into luxury with this stunning modern home nestled in the highly sought-after Bay Woods community of Hampton Bays. This gorgeous residence offers an unparalleled blend of comfort, elegance, and recreational opportunities, perfect for families and entertainers alike.### **Key Features:**- **Spacious Living:** Boasting **3 ensuite bedrooms**, each with unique characteristics, including two with inviting sitting areas - ideal for private retreats.- **Entertainment Ready:** The heart of the home features a remarkable **great room** and an expansive **living room**, both flooded with natural light, perfect for gatherings or cozy nights by the fireplace.- **Gourmet Chef’s Kitchen:** Unleash your culinary creativity in the chef-worthy kitchen, equipped with top-of-the-line appliances, ample counter space, and an elegant design that harmonizes functionality and beauty.- **Outdoor Oasis:** Step outside to your **wrap-around deck** and indulge in the sun-soaked **inground pool** surrounded by meticulously landscaped grounds, providing both beauty and privacy. Perfect for summer barbecues or peaceful evenings under the stars!- **Formal Dining Room:** Host unforgettable dinner parties in the sophisticated formal dining room that sets the scene for exquisite meals and cherished memories.### **Additional Features:**- **Sunlit Spaces:** An expansive sunroom featuring a charming wood-burning stove, perfect for relaxation and enjoying the seasonal views.- **Convenient Amenities:** A half bath for guests, a **circular driveway** for easy access, and an additional fireplace in the primary bedroom to ensure warmth and comfort.- **Nature at Your Doorstep:** Enjoy the beauty of nature with **walking trails** and **numerous parks** nearby. Plus, you’re just moments away from breathtaking bay beaches and the ocean, inviting you to explore the great outdoors.### **Why Bay Woods?**Living in this community means not just owning a home, but embracing a lifestyle. With its scenic beauty, a tight-knit community feel, and endless recreational opportunities, Bay Woods offers the perfect backdrop for your dream life.### **Don’t Miss Out!**This exquisite modern home is more than just a property; it’s a sanctuary waiting to be filled with love and laughter. Schedule your private showing today and step into the life you’ve always dreamed of!Your Bay Woods dream home awaits! ??

More Property Details

Room Information

Bedroom: 3   Full Bath: 4   Half Bath: 1   Other: 1  

Property Features

Lot Size: 0.93   Lot Sq Ft: 40511   Approx. Int. Sq. Ft.: 3602.00   Garage: Yes   Garage: 2.0   Parking Spaces: Yes   Parking Facilities: Attached, Driveway  

Appliances & Utilities

Heat: Hot Air   A/C: Central Air   Water: Public   Sewer: Septic Tank  

Financial

Taxes: $15,922  

Local Area Information

School District: Hampton Bays Elementary School  

Listing Information provided courtesy of Douglas Elliman Real Estate  631-723-2721
Inquire About This Property

(*) - Required fields

  1. Presented by

    Gold Coast Homes & Estates
    • Gold Coast Homes & Estates
    • Licensed Real Estate Broker
    • (631) 283-1000
    •   Contact Us
OneKey™ MLSThe source of the displayed data is either the property owner or public record provided by non-governmental third parties. It is believed to be reliable but not guaranteed. Information Copyright 2020, OneKey™ MLS
© 2025 Gold Coast Homes & Estates. All rights reserved | Login | DMCA Notice | Search Engine powered by eRealtyMedia.com