Properties 295 of 1506 results« Previous property   Next property »

8 September Lane, Glen Cove, NY, 11542 $2,660,000

Single Family For Sale 5 Beds , 3 Full Bath , 1 Half Bath , 5524 SqFt 

Property Picture
1 of 43
 
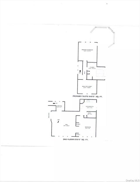
Entry Entry Other Kitchen Dining Area Kitchen Living Room Living Room Living Room Sitting Room Sun Room Bathroom Bedroom Other Patio Bathroom Other Bedroom Back of Structure View Bathroom Patio Aerial View Aerial View Aerial View Back of Structure Back of Structure Aerial View Aerial View Aerial View Waterfront Garden View Floor Plan Floor Plan Floor Plan Floor Plan Entry Entry Dining Area Bathroom Sun Room Yard
 

Details ML#: 922852  

  • Style: Other
  • Year Built: 1979
  • Taxes: $33,434
  • Status:Active

Description

Stunning waterviews from almost every room, multiple decks and rooftop of the Long Island Sound, Dosoris Pond and NYC skyline can be seen from this homes’ unique high vantage point. ALL NEW RENOVATIONS COMPLETED 2022!! As you enter the newly paved stone driveway with parking for multiple vehicles, you are surrounded with lush gardens and waterviews. This is only the beginning, as you continue along towards the back of the home you will encounter new bluestone patios, a refinished wraparound upper deck and immense emerald green lawns. Once inside this newly equipped SMART HOME with solar heating you will find an enormous eat in kitchen, formal dining room/den with fireplace, formal living room, sunroom and an office overlooking the spectacular grounds and waterviews. Enjoy sunsets over the NYC skyline just outside your kitchen window!! Upstairs the primary en-suite has a double spa tub, standalone shower, double sinks and a walk in closet. The ground level recreation room has a new a bar, 3 additional bedrooms/gym and a laundry room with outside entrance. Adding to the uniqueness of this home is a large one bedroom guest suite with a separate outside entrance, living room, eat in kitchen, full bathroom, a deck and a spiral staircase leading to a bonus home office/retreat space all with breathtaking waterviews!! ALL NEW RENOVATIONS in 2022, including paver stone driveway, bluestone entrance, bluestone patios, sprinkler system, grass and specimen tree landscaping, 3 CAC units, gas conversion, electrical, plumbing, bathrooms, tilework, Tesla solar panels, two Tesla car charging stations, laundry room with storage cabinets and washer/dryer, dishwasher, radiant floor heating, SMART HOUSE w/bluetooth connection, primary bedroom walk-in-closet, bar, gym and lower level flooring, high hat lighting and exterior lighting and cameras.MUST SEE THIS ONE-OF-A-KIND, WATERVIEW LOVERS’ DREAM HOME!!

More Property Details

Room Information

Bedroom: 5   Full Bath: 3   Half Bath: 1   Other: 7  

Property Features

Lot Size: 0.96   Lot Sq Ft: 41818   Approx. Int. Sq. Ft.: 5524.00   Garage: Yes   Garage: 2.0   Parking Spaces: Yes   Parking Spaces: 15   Parking Facilities: Driveway, Oversized, Private   Deck: Yes   Waterfront: Yes   Waterfront Desc: Pond, Sound  

Appliances & Utilities

Heat: Baseboard, ENERGY STAR Qualified Equipment, Natural Gas, Radiant, Solar, Radiant Floor   A/C: Central Air   Water: Public   Sewer: Cesspool  

Financial

Taxes: $33,434  

Local Area Information

Block: 42   Lot: 593  

Listing Information provided courtesy of Douglas Elliman Real Estate  516-883-5200
Inquire About This Property

(*) - Required fields

  1. Presented by

    Gold Coast Homes & Estates
    • Gold Coast Homes & Estates
    • Licensed Real Estate Broker
    • (631) 283-1000
    •   Contact Us
OneKey™ MLSThe source of the displayed data is either the property owner or public record provided by non-governmental third parties. It is believed to be reliable but not guaranteed. Information Copyright 2020, OneKey™ MLS
© 2025 Gold Coast Homes & Estates. All rights reserved | Login | DMCA Notice | Search Engine powered by eRealtyMedia.com