Properties 3650 of 19592 results« Previous property   Next property »

9027 78th Street, Woodhaven, NY, 11421 $1,390,000

Multi Family For Sale 7 Beds , 3 Full Bath  

Property Picture
1 of 26
 
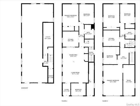
Front of Structure Front of Structure Garage Living Room Living Room Dining Area Kitchen Kitchen Bathroom Dining Area Kitchen Bedroom Bedroom Bedroom Kitchen Bathroom Bedroom Bedroom Back of Structure Front of Structure Other Aerial View Aerial View Aerial View Floor Plan Aerial View
 

Details ML#: 916045  

  • # of Families: 2
  • Year Built: 1915
  • Taxes: $6,739
  • Status:Active

Description

Located in the heart of Woodhaven, this charming detached two-family home offers a building size of 20 x 56 feet. It is conveniently close to both the J and A subway lines, providing easy access to Manhattan. The property features three independent garages. Low property tax, The first floor includes three bedrooms and one bathroom, while the second floor has four bedrooms and one bathroom. In addition, the fully finished basement provides generous living space and a well-designed layout.The owner has recently completed thoughtful renovations, making this home move-in ready. Whether for personal residence or as an investment, this property is an excellent choice. Surrounded by quality schools and a pleasant neighborhood environment, it is ideal for family living and investment.Don’t miss out on the opportunity to make this charming home yours!

More Property Details

Room Information

Bedroom: 7   Full Bath: 3  

Property Features

Lot Size: 0.0574   Lot Sq Ft: 2500   Garage: Yes   Garage: 5.0   Parking Spaces: Yes   Parking Spaces: 3  

Appliances & Utilities

Heat: Baseboard   A/C: Wall/Window Unit(s)   Water: Public   Sewer: Public Sewer  

Financial

Taxes: $6,739  

Local Area Information

School District: Jhs 210 Elizabeth Blackwell  

Listing Information provided courtesy of B Square Realty  917-293-3623
Inquire About This Property

(*) - Required fields

  1. Presented by

    Gold Coast Homes & Estates
    • Gold Coast Homes & Estates
    • Licensed Real Estate Broker
    • (631) 283-1000
    •   Contact Us
OneKey™ MLSThe source of the displayed data is either the property owner or public record provided by non-governmental third parties. It is believed to be reliable but not guaranteed. Information Copyright 2020, OneKey™ MLS
© 2025 Gold Coast Homes & Estates. All rights reserved | Login | DMCA Notice | Search Engine powered by eRealtyMedia.com