Properties 5127 of 18720 results« Previous property   Next property »

31-39 84th Street, Jackson Heights, NY, 11370 $1,098,000

Multi Family For Sale 3 Beds , 3 Full Bath  

Property Picture
1 of 29
 
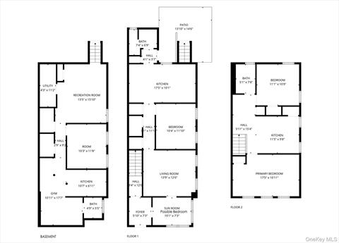
Front of Structure Other Front of Structure Kitchen Kitchen Kitchen Other Other Sun Room Other Bedroom Bedroom Kitchen Kitchen Kitchen Bedroom Other Bedroom Other Other Other Bathroom Exercise Room Basement Bathroom Garage Aerial View Aerial View Floor Plan
 

Details ML#: 925394  

  • # of Families: 2
  • Year Built: 1925
  • Taxes: $7,762
  • Status:Active

Description

Welcome to this charming 2-family semi-detached home in the heart of Jackson Height! The first floor features an eat-in kitchen, 1 bedroom, and 1 full bath. The second floor offers 2 comfortable bedrooms and 1 bath, perfect for additional living space or rental income. A full finished basement with walk-out access provides extra versatility for storage or recreation. Enjoy a shared driveway and a detached 2-car garage for convenient parking. Ideally located near Grand Central Pkwy and Astoria Blvd, with easy access to Q32, Q33, and Q66 buses. Just minutes to Northern Blvd’s shops, restaurants, and entertainment.

More Property Details

Room Information

Bedroom: 3   Full Bath: 3  

Property Features

Lot Size: 0.0505   Lot Sq Ft: 2200   Garage: Yes   Garage: 2.0   Parking Spaces: Yes   Parking Facilities: Garage, Shared Driveway  

Appliances & Utilities

Heat: Natural Gas   A/C: Wall/Window Unit(s)   Water: Public   Sewer: Public Sewer  

Financial

Taxes: $7,762  

Local Area Information

School District: Ps 148  

Listing Information provided courtesy of Prospes Real Estate Corp  718-321-2800
Inquire About This Property

(*) - Required fields

  1. Presented by

    Gold Coast Homes & Estates
    • Gold Coast Homes & Estates
    • Licensed Real Estate Broker
    • (631) 283-1000
    •   Contact Us
OneKey™ MLSThe source of the displayed data is either the property owner or public record provided by non-governmental third parties. It is believed to be reliable but not guaranteed. Information Copyright 2020, OneKey™ MLS
© 2025 Gold Coast Homes & Estates. All rights reserved | Login | DMCA Notice | Search Engine powered by eRealtyMedia.com