Properties 6452 of 19797 results« Previous property   Next property »

16 June Street, Yonkers, NY, 10710 $949,990

Single Family For Sale 5 Beds , 3 Full Bath , 3150 SqFt 

Property Picture
1 of 45
 
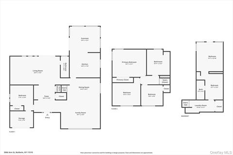
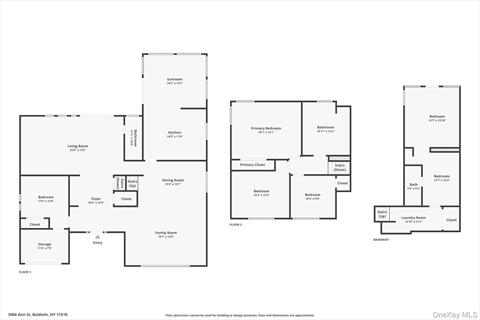
Front of Structure Front of Structure Kitchen Kitchen Kitchen Living Room Living Room Dining Area Dining Area Bedroom Bedroom Bedroom Kitchen Bathroom Kitchen Bathroom Bedroom Other Bedroom Other Other Bedroom Bathroom Bathroom Basement Laundry Bathroom Other Exercise Room Other Yard Back of Structure Side of Structure Front of Structure Front of Structure Front of Structure Aerial View Aerial View Aerial View Aerial View Aerial View Floor Plan Floor Plan Floor Plan Floor Plan
 

Details ML#: 909445  

  • Style: Cape Cod
  • Year Built: 1965
  • Taxes: $12,251
  • Status:Active

Description

Welcome to this single-family residence in a tree lined neighborhood of Yonkers. This house has large rooms through out with beautiful hard wood floors. The first floor consist of a Formal Dining Room, completely updated kitchen, three large bedrooms, , and a spacious living room with a unique bay window. Additionally, there are two full updated bathrooms. The second floor has two bedrooms w/ full bath. Well maintained backyard for enjoyable evenings. Roof is 5 years old. Location gives easy access to shopping, schools, and all major highways. Close proximity to #8 , 20, 21 & 78 Bee Line bus as well as Tuckahoe Train Station. Easy access to Central Park Ave and Transportation to New York City.

More Property Details

Room Information

Bedroom: 5   Full Bath: 3   Other: 4  

Property Features

Lot Size: 0.11   Lot Sq Ft: 4792   Approx. Int. Sq. Ft.: 3150.00   Garage: Yes   Garage: 2.0   Parking Spaces: Yes   Parking Facilities: Attached, Driveway  

Appliances & Utilities

Heat: Baseboard, Hot Water   A/C: Wall/Window Unit(s)   Water: Public   Sewer: Public Sewer  

Financial

Taxes: $12,251  

Local Area Information

School District: Yonkers Early Childhood Academy  

Listing Information provided courtesy of Century 21 Dawns Gold Realty  914-793-8800
Inquire About This Property

(*) - Required fields

  1. Presented by

    Gold Coast Homes & Estates
    • Gold Coast Homes & Estates
    • Licensed Real Estate Broker
    • (631) 283-1000
    •   Contact Us
OneKey™ MLSThe source of the displayed data is either the property owner or public record provided by non-governmental third parties. It is believed to be reliable but not guaranteed. Information Copyright 2020, OneKey™ MLS
© 2025 Gold Coast Homes & Estates. All rights reserved | Login | DMCA Notice | Search Engine powered by eRealtyMedia.com