Properties 6978 of 18720 results« Previous property   Next property »

172 Front Street Unit 172, Port Jervis, NY, 12771 $875,000

Multi Family For Sale 10 Beds , 4 Full Bath  

Property Picture
1 of 3
 
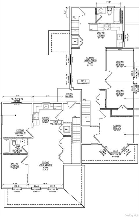
Front of Structure Floor Plan Floor Plan
 

Details ML#: 923116  

  • Style: Colonial
  • # of Families: 4
  • Year Built: 1916
  • Taxes: $4,934
  • Status:Active

Description

Completely Renovated Multi-Family Investment Property – Turnkey Opportunity! This full, to the studs renovation, four-unit multi-family property has been meticulously transformed down to the framing, making it a prime, turnkey investment. Each unit features a private entrance and separate utilities, ensuring convenience and efficiency for tenants. This prime location is just a short walk from the scenic Delaware River and the vibrant downtown Port Jervis. Residents will enjoy easy access to shopping, dining, and entertainment. Designed for the high-end rental market, this property offers a mix of 2 three-over-three bedroom units and 2 two-over-two bedroom units, maximizing both space and appeal. Common Laundry Room with Hook Ups for 2 Washers and 2 Dryers. Access to Yard and Basement (Common Laundry). With rental demand soaring and availability at an all-time low, this is an exceptional opportunity to capitalize on a thriving market.

More Property Details

Room Information

Bedroom: 10   Full Bath: 4  

Property Features

Lot Size: 0.1102   Lot Sq Ft: 4800   Parking Spaces: Yes   Parking Facilities: On Street  

Appliances & Utilities

Heat: Electric   A/C: None   Water: Public   Sewer: Public Sewer  

Financial

Taxes: $4,934  

Local Area Information

School District: Port Jervis Middle School  

Listing Information provided courtesy of Coldwell Banker Realty  914-232-7000
Inquire About This Property

(*) - Required fields

  1. Presented by

    Gold Coast Homes & Estates
    • Gold Coast Homes & Estates
    • Licensed Real Estate Broker
    • (631) 283-1000
    •   Contact Us
OneKey™ MLSThe source of the displayed data is either the property owner or public record provided by non-governmental third parties. It is believed to be reliable but not guaranteed. Information Copyright 2020, OneKey™ MLS
© 2025 Gold Coast Homes & Estates. All rights reserved | Login | DMCA Notice | Search Engine powered by eRealtyMedia.com