Properties 7461 of 19518 results« Previous property   Next property »

14 Bear Hollow Lane, Hyde Park, NY, 12538 $869,000

Single Family For Sale 4 Beds , 3 Full Bath , 1 Half Bath , 3135 SqFt 

Property Picture
1 of 6
 
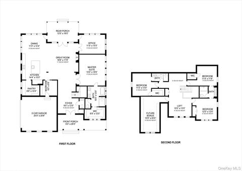
Front of Structure Living Room Living Room Living Room Kitchen Floor Plan
 

Details ML#: 917531  

  • Style: Colonial, Contemporary, Farmhouse
  • Year Built: 2025
  • Taxes: $2,228
  • Status:Active

Description

*Use 120 Haviland Road in maps, actual address will NOT work in maps.* **TO BE BUILT** Welcome to The Woodlands at Hyde Park, an enclave of 20 elite homes, built by a local, well known custom home builder. All lots offer a private and bucolic setting ranging from 1 to 5+ acres. Lot 14 features the Payton Model. A Modern Farmhouse situated on over 2 acres of privacy, primary first floor en suite, 3135 finished SQFT, 4 bedrooms, 3.5 baths, an office, loft and 260 SQFT unfinished bonus room for future gym/play room/flex space! With hardwood floors throughout the common areas, 9’ ceilings in the main level, 11’ ceilings in the great room and an open concept layout. The modern kitchen with an oversized island and walk in pantry boasts plenty of space, open to the dining area and living room. The expansive primary ensuite features walk-in closet, dual sinks, custom shower, soaking tub and tons of windows allowing ample natural light. Upstairs features a princess suite with walk-in closet, Jack & Jill bath and loft area. Two car attached garage and full unfinished basement with 8’ ceilings allows for tons of room for future expansion! Excellent location right in the heart of historic Hyde Park, minutes to the Culinary Institute of America, Marist College, The Walkway over the Hudson, Poughkeepsie Train Station, Village of Rhinebeck and 85 miles to Manhattan! Come build your dream home today! **PHOTOS ARE OF A SIMILAR MODEL DIGITALLY RENDERED AND BUILT ELSEWHERE**

More Property Details

Room Information

Bedroom: 4   Full Bath: 3   Half Bath: 1  

Property Features

Lot Size: 2.135   Approx. Int. Sq. Ft.: 3135.00   Garage: Yes   Garage: 2.0   Parking Spaces: Yes   Parking Spaces: 2   Parking Facilities: Attached, Covered, Driveway, Garage, Off Street, Private, Storage  

Appliances & Utilities

Heat: Electric, Heat Pump   A/C: Central Air   Water: Well   Sewer: Septic Tank  

Financial

Taxes: $2,228  

Local Area Information

School District: Ralph R Smith School  

Listing Information provided courtesy of KW MidHudson  914-962-0007
Inquire About This Property

(*) - Required fields

  1. Presented by

    Gold Coast Homes & Estates
    • Gold Coast Homes & Estates
    • Licensed Real Estate Broker
    • (631) 283-1000
    •   Contact Us
OneKey™ MLSThe source of the displayed data is either the property owner or public record provided by non-governmental third parties. It is believed to be reliable but not guaranteed. Information Copyright 2020, OneKey™ MLS
© 2025 Gold Coast Homes & Estates. All rights reserved | Login | DMCA Notice | Search Engine powered by eRealtyMedia.com