Properties 9523 of 19592 results« Previous property   Next property »

609 State Street, Hudson, NY, 12534 $740,000

Townhouse For Sale 2 Beds , 2 Full Bath , 1540 SqFt 

Property Picture
1 of 41
 
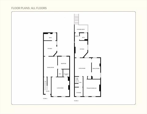
Aerial View Front of Structure Entry Front of Structure Yard Other Entry Living Room Living Room Entry Dining Area Kitchen Bedroom Bedroom Bathroom Patio Back of Structure Other Other Living Room Bedroom Bedroom Living Room Dining Area Dining Area Other Bathroom Kitchen Kitchen Other Other Attic Aerial View Deck Back of Structure Other Side of Structure Other Entry Front of Structure Floor Plan
 

Details ML#: 882500  

  • Style: Other
  • Year Built: 1880
  • Taxes: $7,600
  • Status:Active

Description

Welcome to Winfield Townhouse, a stylish 1880 brick townhouse in Hudson’s vibrant Upper Depot District. Historic details like bracketed cornices and arched windows are complemented by modern upgrades, creating a home that’s both timeless and turnkey. Configured as a two-family residence, the property features an owner’s residence above a successful income producing short-term rental. The versatile layout can be easily adapted to single-family living. The property also includes a classic carriage barn with alley access, and a lovely yard. Thoughtful renovations emphasize design and livability. On the first floor a decorative mantel adds a historic focal point in the living room, and a cozy dining room anchors the space. The modern bath and updated kitchen feature heated, polished concrete floors. Upstairs, the second-floor residence includes a renovated kitchen and bath, newer windows, and modern mini-split heating and cooling for year round comfort. Ceilings have been fully insulated with mineral wool for superior efficiency.The walk-up attic has been outfitted with new electrical, water, gas, and waste lines, offering a head start for future expansion. Both units have direct access to a lovely yard, for quiet mornings or al fresco dining. The carriage barn has alley access, and has potential to be reimagined as a garage, gym, or artist studio. The property is connected to city water, city sewer, and natural gas, for low maintenance, hassle free living. Located just blocks from the Hudson farmers’ market and Warren Street’s shops, dining, and galleries, Winfield Townhouse combines historic charm with income potential, owner flexibility, and a prime location in one of Hudson’s most dynamic neighborhoods. Note that this sale includes the townhouse on the right hand side only.

More Property Details

Room Information

Bedroom: 2   Full Bath: 2   Other: 4  

Property Features

ConstructionMaterials: Garden   Lot Size: 0.06   Lot Sq Ft: 2614   Approx. Int. Sq. Ft.: 1540.00   Parking Spaces: Yes   Parking Facilities: Alley Access, On Street   Deck: Yes  

Appliances & Utilities

Heat: Electric, Natural Gas   A/C: None   Water: Public   Sewer: Public Sewer  

Financial

Taxes: $7,600  

Local Area Information

School District: Hudson Falls Intermediate School  

Listing Information provided courtesy of Houlihan Lawrence, Inc  518-822-0300
Inquire About This Property

(*) - Required fields

  1. Presented by

    Gold Coast Homes & Estates
    • Gold Coast Homes & Estates
    • Licensed Real Estate Broker
    • (631) 283-1000
    •   Contact Us
OneKey™ MLSThe source of the displayed data is either the property owner or public record provided by non-governmental third parties. It is believed to be reliable but not guaranteed. Information Copyright 2020, OneKey™ MLS
© 2025 Gold Coast Homes & Estates. All rights reserved | Login | DMCA Notice | Search Engine powered by eRealtyMedia.com