Properties 9849 of 19797 results« Previous property   Next property »

6 Arielle Court, Hauppauge, NY, 11749 $719,000

Condo For Sale 3 Beds , 2 Full Bath , 1 Half Bath , 1950 SqFt 

Property Picture
1 of 21
 
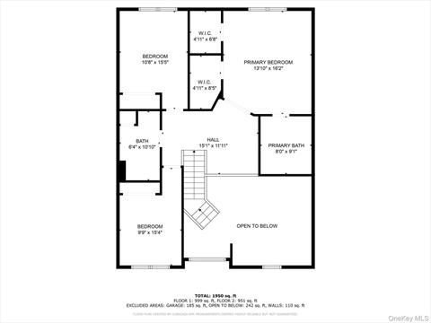
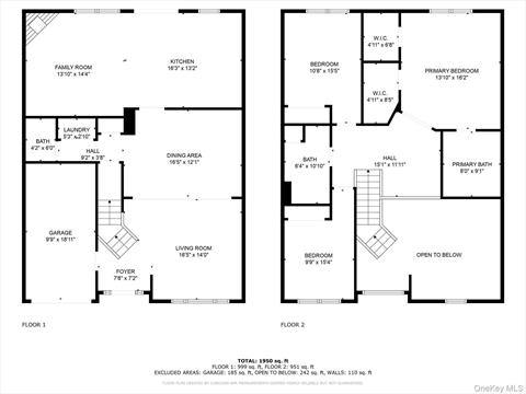
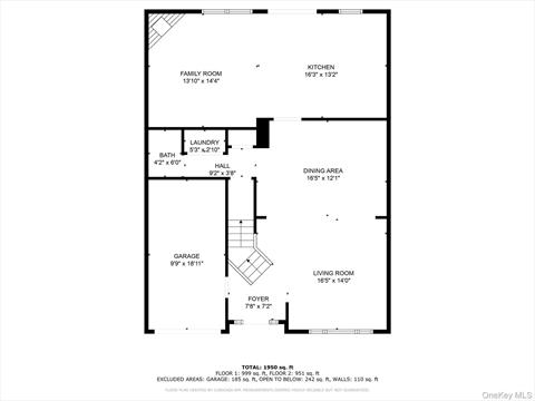
Front of Structure Front of Structure Living Room Living Room Dining Area Bathroom Kitchen Kitchen Kitchen Kitchen Living Room Entry Other Sitting Room Bedroom Bathroom Bathroom Back of Structure Floor Plan Floor Plan Floor Plan
 

Details ML#: 916391  

  • Year Built: 2004
  • Taxes: $9,465
  • Status:Active

Description

This Stunning And Spacious 3-Bedroom, 2.5-Bathroom Condo Offers The Perfect Blend Of Comfort, Style, And Modern Convenience. The Heart Of The Home Is A Newly Renovated Chef’s Kitchen, Thoughtfully Designed With High-End Finishes And Generous Space To Inspire Culinary Creativity. An Open Floor Plan Seamlessly Connects The Kitchen, Dining, And Living Areas, Creating A Bright And Inviting Atmosphere Ideal For Both Everyday Living And Entertaining. Gorgeous Dark Wood Floors And Oversized Windows Flood The Home With Warmth And Natural Light, While A Convenient Half Bath And Laundry Room Complete The First Floor. Upstairs, You’ll Find A Massive Primary Bedroom Suite With Two Walk In Closets Offering A Private Retreat. Newly Renovated Full Main Bathroom Upstairs; Central Air Ensures Year-Round Comfort, While A Whole-House Water Filtration System Provides Added Peace Of Mind. Nestled Within A Quaint And Quiet Cul-De-Sac Community, This Home Offers Both Privacy And Accessibility—Just Moments From The Long Island Expressway. All Within The Sought-After Hauppauge School District!

More Property Details

Animals Policy: Yes

Room Information

Bedroom: 3   Full Bath: 2   Half Bath: 1   Other: 1  

Property Features

Lot Size: 0.02   Lot Sq Ft: 871   Approx. Int. Sq. Ft.: 1950.00   Garage: Yes   Garage: 1.0   Parking Spaces: Yes   Parking Spaces: 2   Parking Facilities: Driveway   Stories: 2   Pets: Yes  

Appliances & Utilities

Heat: Natural Gas   A/C: Central Air   Water: Public   Sewer: Public Sewer  

Financial

Taxes: $9,465  

Local Area Information

School District: Bretton Woods Elementary School  

Listing Information provided courtesy of Go Asset Inc  833-462-7738
Inquire About This Property

(*) - Required fields

  1. Presented by

    Gold Coast Homes & Estates
    • Gold Coast Homes & Estates
    • Licensed Real Estate Broker
    • (631) 283-1000
    •   Contact Us
OneKey™ MLSThe source of the displayed data is either the property owner or public record provided by non-governmental third parties. It is believed to be reliable but not guaranteed. Information Copyright 2020, OneKey™ MLS
© 2025 Gold Coast Homes & Estates. All rights reserved | Login | DMCA Notice | Search Engine powered by eRealtyMedia.com