Properties 1159 of 2763 results« Previous property   Next property »

4 Deer Run Trail, Fort Montgomery, NY, 10922 $925,000

Single Family For Sale 4 Beds , 4 Full Bath , 4573 SqFt 

Property Picture
1 of 50
 
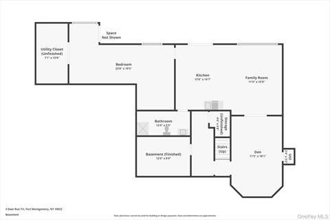
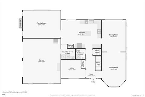
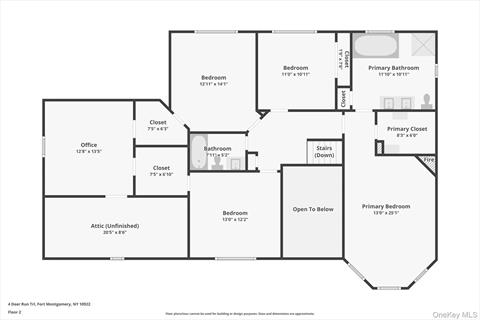
Front of Structure Front of Structure Front of Structure Entry Other Living Room Living Room Dining Area Dining Area Kitchen Dining Area Kitchen Living Room Living Room Laundry Bathroom Office Living Room Sitting Room Office Bedroom Bedroom Bathroom Bedroom Bedroom Bedroom Bathroom Bathroom Bedroom Other Living Room Living Room Dining Area Dining Area Bedroom Bathroom Bathroom Patio Deck Patio Back of Structure Deck Deck Back of Structure Aerial View View Aerial View Floor Plan Floor Plan Floor Plan
 

Details ML#: 886898  

  • Style: Colonial
  • Year Built: 2003
  • Taxes: $18,000
  • Status:Active

Description

Welcome to 4 Deer Run Trail, a meticulously maintained home located in the scenic hills of Fort Montgomery, offering space, comfort, and stunning mountain views. This expansive residence features 4 bedrooms, 4 full bathrooms, a dedicated home office, and an additional recreation room. With a full finished basement that includes a kitchenette, full bathroom, space for a bedroom, and a private entrance, the home offers excellent mother-daughter flexibility and income potential, as it is currently rented as a successful Airbnb. The main level showcases elegant crown molding and an abundance of natural light. The spacious eat-in kitchen features ample cabinetry and flows into a formal dining room, perfect for gatherings and entertaining. Just off the kitchen, a large deck with a retractable awning offers a great space for outdoor dining or relaxing while enjoying the peaceful surroundings. The inviting family room centered around a gas fireplace with vaulted ceilings creates a warm and welcoming atmosphere. Upstairs, the primary suite serves as a luxurious retreat, complete with tray ceilings, its own gas fireplace, and a spa-inspired ensuite featuring double sinks, a walk-in shower, and a jet tub. A walk-in closet in the primary suite and ample closet space throughout the home adds to its functionality. The home is also equipped with a central vacuum system and a 10 zone sprinkler system for added convenience and ease of maintenance. Ideally located within 5 miles of the prestigious West Point Military Academy, granting walking privileges. This home is also just 10 minutes from the Garrison Train Station, 5 minutes to the Westchester border, and 45 minutes to the George Washington Bridge, offering both tranquility and commuter convenience. Whether you’re looking for a full-time residence, a multi-generational setup, or a property with rental income potential, this home checks every box.

More Property Details

Room Information

Bedroom: 4   Full Bath: 4   Other: 5  

Property Features

ConstructionMaterials: Awning(s)   Lot Size: 0.6921   Lot Sq Ft: 30150   Approx. Int. Sq. Ft.: 4573.00   Garage: Yes   Garage: 2.0   Parking Spaces: Yes   Parking Facilities: Driveway, Garage   Deck: Yes   Porch Description: Yes  

Appliances & Utilities

Heat: Baseboard, Oil   A/C: Central Air, Wall/Window Unit(s)   Water: Public   Sewer: Public Sewer  

Financial

Taxes: $18,000  

Local Area Information

School District: Fort Montgomery Elementary School  

Listing Information provided courtesy of Howard Hanna Rand Realty  845-928-9691
Inquire About This Property

(*) - Required fields

  1. Presented by

    Gold Coast Homes & Estates
    • Gold Coast Homes & Estates
    • Licensed Real Estate Broker
    • (631) 283-1000
    •   Contact Us
OneKey™ MLSThe source of the displayed data is either the property owner or public record provided by non-governmental third parties. It is believed to be reliable but not guaranteed. Information Copyright 2020, OneKey™ MLS
© 2025 Gold Coast Homes & Estates. All rights reserved | Login | DMCA Notice | Search Engine powered by eRealtyMedia.com