Properties 1414 of 2724 results« Previous property   Next property »

Lot #21 Azalea Lane, Slate Hill, NY, 10973 $799,900

Single Family For Sale 4 Beds , 2 Full Bath , 1 Half Bath , 3159 SqFt 

Property Picture
1 of 31
 
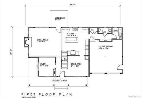
Front of Structure Floor Plan Floor Plan Aerial View Aerial View Aerial View Aerial View Aerial View Aerial View Aerial View Aerial View Aerial View Aerial View Living Room Kitchen Kitchen Kitchen Dining Room Office Laundry Other Primary Bedroom Primary Bedroom Primary Bathroom Primary Bathroom Primary Bathroom Bedroom Closet Bedroom Bathroom Bathroom
 

Details ML#: 914262  

  • Style: Colonial
  • Year Built: 2025
  • Taxes: $14,348
  • Status:Active

Description

Beautiful new construction being built in Ridgebury Estates, a new community of carefully crafted colonials perched high on a hill with tree-lined streets, stone walls and lots of open space. Situated in the heart of Orange County, NY and in the highly sought-after Minisink Valley School District. Discover refined living in The Fennel Model, presenting 4 bedrooms and 2.5 baths, designed with both elegance and functionality in mind. The main level showcases a sun-filled living room with gleaming hardwood floors and a sophisticated fireplace, a formal dining room ideal for entertaining, and an additional room well-suited for a private office or study. The chef’s kitchen is a true showpiece, featuring a center island, quartz countertops, a decorative tiled backsplash, and premium stainless steel appliances. The second-floor primary suite offers a luxurious retreat with vaulted ceilings, an expansive walk-in closet, and a spa-inspired bath with a double vanity, corner tiled shower, and deep soaking tub. Three additional bedrooms provide ample space for family or guests. Additional amenities include central air, a full partially finished basement, and an attached 2-car garage. This residence combines timeless design, and upscale finishes creating the perfect place to call home.

More Property Details

Room Information

Bedroom: 4   Full Bath: 2   Half Bath: 1   Other: 1  

Property Features

Lot Size: 8.91   Lot Sq Ft: 388120   Approx. Int. Sq. Ft.: 3159.00   Garage: Yes   Garage: 2.0   Parking Spaces: Yes   Parking Facilities: Attached, Driveway, Garage   Deck: Yes   Porch Description: Yes  

Appliances & Utilities

Heat: Forced Air   A/C: Central Air   Water: Well   Sewer: Septic Tank  

Financial

Taxes: $14,348  

Local Area Information

School District: Minisink Valley Elementary  

Listing Information provided courtesy of Realty Promotions Inc  845-381-5777
Inquire About This Property

(*) - Required fields

  1. Presented by

    Gold Coast Homes & Estates
    • Gold Coast Homes & Estates
    • Licensed Real Estate Broker
    • (631) 283-1000
    •   Contact Us
OneKey™ MLSThe source of the displayed data is either the property owner or public record provided by non-governmental third parties. It is believed to be reliable but not guaranteed. Information Copyright 2020, OneKey™ MLS
© 2025 Gold Coast Homes & Estates. All rights reserved | Login | DMCA Notice | Search Engine powered by eRealtyMedia.com