Properties 1421 of 2724 results« Previous property   Next property »

128 N Windhorst Avenue, Bethpage, NY, 11714 $799,000

Single Family For Sale 5 Beds , 4 Full Bath , 2042 SqFt 

Property Picture
1 of 27
 
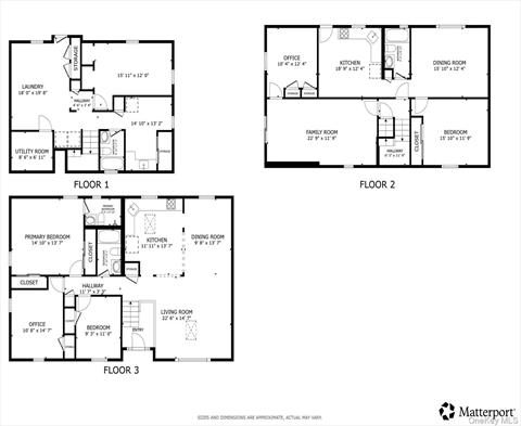
Front of Structure Living Room Kitchen Living Room Dining Area Dining Area Entry Bedroom Bedroom Sitting Room Living Room Bathroom Bathroom Office Bathroom Bathroom Kitchen Other Other Bedroom Entry Basement Laundry Yard Back of Structure Yard Floor Plan
 

Details ML#: 920357  

  • Style: Hi Ranch
  • Year Built: 1981
  • Taxes: $14,516
  • Status:Active

Description

A rare opportunity to own a High Ranch with a full basement featuring an outside entrance, 128 N Windhorst Ave offers space, flexibility, and a sought-after location in Bethpage. The classic exterior with its welcoming front presence and well-kept property sets the tone for this versatile home. Inside, you’ll find 5 bedrooms and 4 full bathrooms, including a private en-suite primary. Hardwood floors grace the second-floor bedrooms and main living areas, while the first floor and basement feature primarily engineered flooring for durability and style. The open living room flows seamlessly into the dining area and kitchen. With a full basement and separate entrance, this home presents an ideal setup for a potential mother/daughter arrangement with proper permits. Laundry is conveniently located in the basement. The property includes a fully fenced backyard with a patio—perfect for outdoor gatherings and relaxation. Enjoy being moments from Bethpage town center, schools, shopping, dining, and public transportation. Offering both comfort and convenience, this spacious home is ready for its next chapter.

More Property Details

Room Information

Bedroom: 5   Full Bath: 4   Other: 3  

Property Features

Lot Size: 0.1607   Lot Sq Ft: 7000   Approx. Int. Sq. Ft.: 2042.00   Garage: 0.0   Parking Spaces: Yes   Parking Facilities: Other  

Appliances & Utilities

Heat: Natural Gas   A/C: Wall/Window Unit(s)   Water: Public   Sewer: Public Sewer  

Financial

Taxes: $14,516  

Local Area Information

School District: Central Boulevard Elementary School  

Listing Information provided courtesy of Redfin Real Estate  631-337-8238
Inquire About This Property

(*) - Required fields

  1. Presented by

    Gold Coast Homes & Estates
    • Gold Coast Homes & Estates
    • Licensed Real Estate Broker
    • (631) 283-1000
    •   Contact Us
OneKey™ MLSThe source of the displayed data is either the property owner or public record provided by non-governmental third parties. It is believed to be reliable but not guaranteed. Information Copyright 2020, OneKey™ MLS
© 2025 Gold Coast Homes & Estates. All rights reserved | Login | DMCA Notice | Search Engine powered by eRealtyMedia.com