Properties 876 of 2724 results« Previous property   Next property »

2325 Centre Avenue, Bellmore, NY, 11710 $1,188,888

Multi Family For Sale 2 Beds , 3 Full Bath  

Property Picture
1 of 40
 
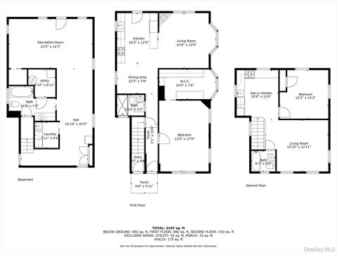
Front of Structure Front of Structure Living Room Dining Area Kitchen Kitchen Kitchen Kitchen Dining Area Bedroom Bedroom Closet Bathroom Basement Basement Basement Basement Basement Bathroom Laundry Entry Kitchen Living Room Bedroom Bathroom Back of Structure Back of Structure Patio Back of Structure Back of Structure Front of Structure Front of Structure Aerial View Aerial View Aerial View Aerial View Floor Plan Floor Plan Floor Plan Floor Plan
 

Details ML#: 910580  

  • Style: Other
  • # of Families: 2
  • Year Built: 1888
  • Taxes: $13,637
  • Status:Active

Description

Opportunity awaits! Calling all investors, homeowners, and multi-family buyers - this beautifully updated Legal 2-Family home offers versatile living with two private entrances, perfect for rental income or extended family. The first-floor unit features a welcoming living room with a custom wood accent wall, flowing into an open-concept kitchen with a peninsula island, quartz countertops, custom cabinetry, tiled backsplash, and stainless-steel appliances. A bay-window walk-in closet off the bedroom adds charm and functionality. The finished basement extends the living space with banquet seating, a family room, built-in Murphy bed, sleek full bath, laundry room, and outside entrance. The second-floor unit provides privacy with its own entrance, and includes a comfortable living room, kitchen, bedroom, and full bath. Exterior highlights include lush landscaping, a private patio, freshly paved deep driveway, and an oversized 2-car detached garage with generous storage. Prime location - just steps to the train and public transportation, and minutes to beaches, schools, shopping, and dining.

More Property Details

Room Information

Bedroom: 2   Full Bath: 3  

Property Features

Lot Size: 0.2755   Lot Sq Ft: 12001   Garage: Yes   Garage: 2.0   Parking Spaces: Yes   Parking Facilities: Driveway, Garage  

Appliances & Utilities

Heat: Natural Gas   A/C: Central Air   Water: Public   Sewer: Public Sewer  

Financial

Taxes: $13,637  

Local Area Information

School District: Reinhard Early Childhood Center   Block: 336   Lot: 69  

Listing Information provided courtesy of Keller Williams Realty Elite  516-795-6900
Inquire About This Property

(*) - Required fields

  1. Presented by

    Gold Coast Homes & Estates
    • Gold Coast Homes & Estates
    • Licensed Real Estate Broker
    • (631) 283-1000
    •   Contact Us
OneKey™ MLSThe source of the displayed data is either the property owner or public record provided by non-governmental third parties. It is believed to be reliable but not guaranteed. Information Copyright 2020, OneKey™ MLS
© 2025 Gold Coast Homes & Estates. All rights reserved | Login | DMCA Notice | Search Engine powered by eRealtyMedia.com