Properties 1300 of 2724 results« Previous property   Next property »

101 Fenton Way, Hopewell Junction, NY, 12533 $849,900

Single Family For Sale 4 Beds , 3 Full Bath , 1 Half Bath , 3169 SqFt 

Property Picture
1 of 44
 
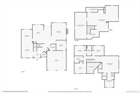
Front of Structure Front of Structure Entry Entry Entry Living Room Living Room Living Room Living Room Dining Area Kitchen Kitchen Kitchen Kitchen Family Room Family Room Family Room Family Room Bathroom Other Office Bathroom Bedroom Bedroom Bathroom Bedroom Bedroom Bedroom Bathroom Bathroom Basement Basement Basement Patio Back of Structure Back of Structure Yard Back of Structure Back of Structure Community Community Pool Other Floor Plan
 

Details ML#: 916521  

  • Style: Colonial
  • Year Built: 2011
  • Taxes: $17,212
  • Status:Active

Description

Welcome to the upscale community of Hopewell Glen located in the heart of East Fishkill. Introducing 101 Fenton Way, the beautiful Niagara model crafted with distinction by Toll Brothers. Set on a corner lot, this magnificent 4-bedroom, 3.5 bathroom residence exudes elegance and comfort at every turn. Featuring a thoughtful layout, this home offers an open concept design where the kitchen seamlessly connects to the dining and living areas. The main floor boasts a gourmet kitchen with a large center island and granite counter tops, pantry and two dishwashers which are great for entertaining. Adjacent to the kitchen is a cozy family room with a stunning fireplace accented with an authentic stone wall, creating a perfect atmosphere for relaxation. The first floor also includes a formal dining room, living room, powder room, convenient laundry area and mud room with built-in storage. Upstairs, you’ll find 4 generous-sized bedrooms, including a luxurious master suite with a walk-in closet, heated floors and a spa-like en-suite bath. This home features a finished basement perfect for a separate place to unwind, playroom or exercise. The large corner lot offers privacy and tranquility, with plenty of outdoor space for gatherings or simply enjoying nature. As a resident of Hopewell Glen you will be able to enjoy the low HOA fees while living a country club lifestyle. Included is a beautiful clubhouse, fitness center, game room, and entertainment space with kitchen for catering, heated in-ground pool, tennis, basketball and pickle ball courts, playground and direct access to the idyllic 18 mile Dutchess Rail Trail (50 yards from the house) for walking biking or rollerblading. Close to all the Hudson Valley has to offer including train stations and highways you get to experience the perfect blend of luxury, convenience and community in the heart of Hopewell Junction.

More Property Details

Room Information

Bedroom: 4   Full Bath: 3   Half Bath: 1   Other: 6  

Property Features

Lot Size: 0.26   Lot Sq Ft: 11326   Approx. Int. Sq. Ft.: 3169.00   Garage: Yes   Garage: 2.0   Parking Spaces: Yes   Parking Facilities: Driveway, Garage   Porch Description: Yes   Existing Structures: InGround Pool   

Appliances & Utilities

Heat: Forced Air, Natural Gas, Radiant Floor   A/C: Central Air   Water: Public   Sewer: Public Sewer  

Financial

Taxes: $17,212  

Local Area Information

School District: Fishkill Plains Elementary School  

Listing Information provided courtesy of Houlihan Lawrence Inc.  845-473-9770
Inquire About This Property

(*) - Required fields

  1. Presented by

    Gold Coast Homes & Estates
    • Gold Coast Homes & Estates
    • Licensed Real Estate Broker
    • (631) 283-1000
    •   Contact Us
OneKey™ MLSThe source of the displayed data is either the property owner or public record provided by non-governmental third parties. It is believed to be reliable but not guaranteed. Information Copyright 2020, OneKey™ MLS
© 2025 Gold Coast Homes & Estates. All rights reserved | Login | DMCA Notice | Search Engine powered by eRealtyMedia.com