Properties 1889 of 2752 results« Previous property   Next property »

27 Parkridge Circle, Port Jefferson Station, NY, 11776 $619,990

Single Family For Sale 4 Beds , 2 Full Bath , 1 Half Bath , 2306 SqFt 

Property Picture
1 of 36
 
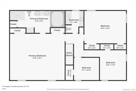
Front of Structure Living Room Living Room Den Den Dining Room Kitchen Kitchen Kitchen Kitchen Dining Area Dining Area Bathroom Laundry Primary Bedroom Primary Bedroom Primary Bathroom Primary Bathroom Primary Bathroom Bedroom Bedroom Bathroom Bathroom Bedroom Bedroom Bedroom Yard Yard Yard Back of Structure Back of Structure Back of Structure Front of Structure Floor Plan Floor Plan
 

Details ML#: 912537  

  • Style: Colonial
  • Year Built: 1979
  • Taxes: $13,937
  • Status:Active

Description

You won’t want to miss THIS! Great opportunity to own on Parkridge Circle! 4BR 2.5BA colonial has new windows (2yrs), front door & sliders (2yrs), new burner & oil tank (2yrs), new refrigerator(2yrs) & double oven (3yrs). Close to schools, highways, shopping, SUNY & LIRR. Taxes are overassessed and will qualify for a grievance. Blink and you’ll miss it!

More Property Details

Room Information

Bedroom: 4   Full Bath: 2   Half Bath: 1   Other: 2  

Property Features

Lot Size: 0.37   Lot Sq Ft: 16117   Approx. Int. Sq. Ft.: 2306.00   Garage: Yes   Garage: 1.0   Porch Description: Yes  

Appliances & Utilities

Heat: Baseboard, ENERGY STAR Qualified Equipment, Oil   A/C: None   Water: Public   Sewer: Cesspool  

Financial

Taxes: $13,937  

Local Area Information

School District: Clinton Avenue School  

Listing Information provided courtesy of Howard Hanna Coach  631-331-3600
Inquire About This Property

(*) - Required fields

  1. Presented by

    Gold Coast Homes & Estates
    • Gold Coast Homes & Estates
    • Licensed Real Estate Broker
    • (631) 283-1000
    •   Contact Us
OneKey™ MLSThe source of the displayed data is either the property owner or public record provided by non-governmental third parties. It is believed to be reliable but not guaranteed. Information Copyright 2020, OneKey™ MLS
© 2025 Gold Coast Homes & Estates. All rights reserved | Login | DMCA Notice | Search Engine powered by eRealtyMedia.com