Properties 2606 of 2752 results« Previous property   Next property »

4901 Henry Hudson Parkway Unit 7B, Bronx, NY, 10471 $245,000

Coop For Sale 1 Beds , 1 Full Bath , 675 SqFt 

Property Picture
1 of 25
 
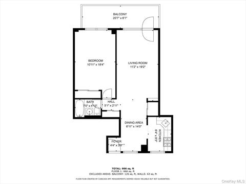
Community Living Room Living Room Living Room Other Kitchen Kitchen Bedroom Bedroom Bathroom Other Other Balcony Balcony Balcony Laundry Gym Gym Other Lobby Front of Structure Pool Community Other Floor Plan
 

Details ML#: 915637  

  • Style: Other
  • Year Built: 1961
  • Status:Active

Description

The Windsor is a full-service co-op situated on 16 acres, comprising two buildings, each with 24-hour doormen.Move in ready, One Bedroom unit with Spacious Living Room featuring picture windows and access to a Large Terrace facing the homes in the estate area, perfect for enjoying your breakfast, lunch or dinner alone or with company. A Windowed Galley Kitchen with Wood Cabinets, a Granite Countertop and Ceramic Floor tiles. There is a nicely sized bedroom with a Spacious floor-to-ceiling double closet. The bathroom has been updated and includes a tub with a shower.Maintenance includes gas, electricity, central air conditioning and heating. Common Laundry Facilities. a Seasonal Swimming Pool, Bicycle Storage, Indoor ($125)/Outdoor ($105) Parking and a Gym (available for a fee). The Windsor is centrally located, offering easy access to Manhattan, the Metro-North Train, Express buses, and City buses. Close to the restaurants and shopping in North and Central Riverdale.Pets are allowed - Dog restrictions (30Lbs).

More Property Details

Animals Policy: Cats OK, Dogs OK, Size Limit

Room Information

Bedroom: 1   Full Bath: 1   Other: 1  

Property Features

ConstructionMaterials: Balcony, Other, Playground   Approx. Int. Sq. Ft.: 675.00   Garage: Yes   Garage: 1.0   Parking Spaces: Yes   Parking Facilities: Assigned, Covered, Garage, Garage Door Opener   Existing Structures: InGround Pool   

Appliances & Utilities

Refrigerator: Yes   Stoves: Yes   Heat: Natural Gas   A/C: Central Air   Water: Public   Sewer: Public Sewer  

Local Area Information

School District#: 10   School District: Ps 81 Robert J Christen  

Listing Information provided courtesy of Robert E. Hill Inc.  718-884-2200
Inquire About This Property

(*) - Required fields

  1. Presented by

    Gold Coast Homes & Estates
    • Gold Coast Homes & Estates
    • Licensed Real Estate Broker
    • (631) 283-1000
    •   Contact Us
OneKey™ MLSThe source of the displayed data is either the property owner or public record provided by non-governmental third parties. It is believed to be reliable but not guaranteed. Information Copyright 2020, OneKey™ MLS
© 2025 Gold Coast Homes & Estates. All rights reserved | Login | DMCA Notice | Search Engine powered by eRealtyMedia.com